Rumsbeskrivning Körvelgången 21
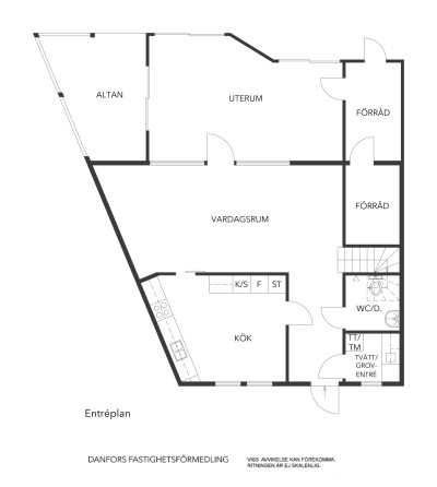
Ingång till hall som öppnar upp sig mot vardagsrummet. Till höger i hallen nås tvättstugan samt toalett och dusch med kakel i duschutrymmet och väv på övriga väggar. Till vänster i hallen kommer man in till ett stort ljust kök, detta har renoverats 2014 med bland annat ny ljus köksinredning, köksbänkar, vitvarorna är från 2012-2016. Trevlig matplats vid fönstret mot innergården. Laminatgolv i hela bostaden förutom badrummen, tvättstugan samt i ett av sovrummen på ovanvåningen. Vidare från hallen når man stort ljust vardagsrum med vita väggar. Här finns det plats för både soffgrupp och matrumsmöbler. Här nås utgång till det inglasade uterummet som har skjutpartier ut mot trädgårdstäppan och den insynsskyddad altanhörnan.
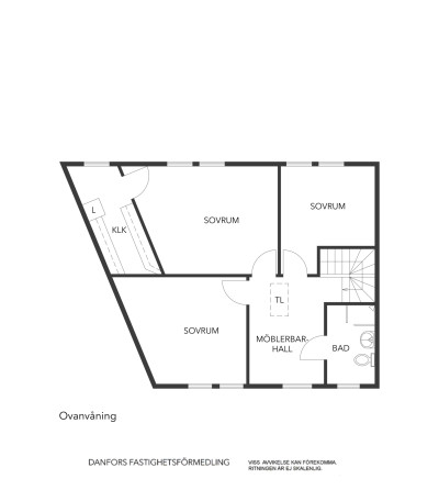
Ovanvåningen nås från hallen via vitmålad trapp upp till en möblerbar hall. Från hallen angränsar tre ordentliga sovrum. Det stora sovrummet har även tillgång till en stor klädkammare med fönster och denna nyttjas idag som arbetsrum. Från hallen nås även badrummet.
Hela lägenheten har renoverats löpande med bl a ommålning och renovering av kök.Entré/hall
Ljus hall med laminatgolv, plats för avhängningsmöjlighet för ytterkläder.
Tvättstuga
Inrett med plastmatta, målad vävtapet, vask, tvättmaskin, torktumlare, förvaring, vädringsfönster
Toalett/dusch
Inrett med plastmatta, kakel i duschutrymmet, dusch (glasvägg), wc, tvättställ, handukstork.
Kök
Rymligt kök inrett i ljusa färger. Köksluckor och bänkskivor från Ballingslöv. Diskmaskin, kyl, frys, spis/ugn, fläkt, runt fönster mot vardagsrummet.
Vardagsrum
Laminatgolv, stora fönsterpartier och utgång till uterummet.
Uterum
Stort uterum med intilliggande förråd, filtmatta med marksten under, skjutpartier ut mot trädgård och altan.
Hall Ov
Laminatgolv, fönster mot innergården åt väster. Här finns även luckan upp till vinden som har stor förvaring.
Badrum Ov
Inrett med plastmatta, kakel, dusch (vikbara glasdörrar), wc, tvättställ, handdukstork, vädringsfönster.
Sovrum 1 Ov
Laminatgolv, fönster åt nord/ost, målad vävtapet.
Sovrum 2 Ov
Masterbedroom med textilmatta, skjutgarderob, fönster åt nord/ost, intilliggande walk-in-closet alternativt arbetshörna.
Sovrum 3 Ov
Laminatgolv, fönster åt väster, målad strukturtapet.
-
Kortfakta
TypBostadsrättUpplåtelseformBRAdressKörvelgången 21Postadress31236 LAHOLMOmrådeLaholmKommunLaholmLgh.nr204132001-0021Boarea124.5 m²AreakällaFöreningens informationAntal rum4 rumPris850 000 krByggnad
Byggnadstyp2-plans gathusByggnadsår1990Fönster3-glasfönsterUppvärmningFjärrvärmeVentilationSjälvdragÖvriga byggnader/utrymmenDet finns cykelförråd, samlingslokal, trivsellokal.Ekonomi
Utgångspris850 000 krMånadsavgift7 798 kr/mån. i månadsavgiften ingår värme och vatten, tv och bredband via fiber samt sophämtning.Andel i föreningen2.60331%Andel av årsavgift2.50614%Bostaden är pantsattJaDriftskostnader
Hushållsel5 160 kr/årFörsäkring1 032 kr/årSumma6 192 kr/årEnergideklaration
StatusUtförd (2018-12-18)Energiförbrukning171 kWh/m2/år (ATEMP)EnergiklassFEl
Elbolag:Södra Hallands KraftElleverantör:BixiaElförbrukning:3180 kWh/årUteplats/balkong
Inglasat uterum med intilliggande förråd.Förening
NamnRiksbyggens Brf Laholmshus Nr 2OrganisationsformBostadsrattOrg.nummer716408-3094Föreningen äger marken?Föreningen ägare marken.Äkta/oäkta förening?ÄktaAntal lägenheter46 stAntal lokaler1 stÖverlåtelseavgift1183 kr (betalas av Säljare)Pantsättningsavgift473 krTillåts delat ägande?RenoveringarFör att bevara föreningens hus i gott skick utförs löpande reparationer av uppkomna skador samt planerat underhåll av normala förslitningar. Föreningen har under verksamhetsåret utfört reparationer för 84 tkr och planerar underhåll för 319 tkr.
Föreningens underhållsplan visar på ett underhållsbehov på 20 028 tkr för de närmaste 30 år. Detta motsvarar en årlig genomsnittlig kostnad på 668 tkr (149 kr/kvm). Avsättning för verksamhetsåret har skett med 149 kr/kvm.ParkeringSeparat kö till carport.Övrigt
Kabel-TV, fiber samt parkeringsplats ingår i hyran.Tillträde
Maj 2021 -
Om området
Laholm är både den äldsta och den minsta staden i Halland. Den pittoreska och levande stadskärnan har välbevarad historisk bebyggelse med spår från danska tiden, som i stadsdelen Gamleby med smala gränder och låga hus. Stadens Teckningsmuseum är Nordens enda och Laholm kallas sedan länge Den lilla staden med de många konstverken. Ett är den praktfulla fontänen på Stortorget vilket också får liv av torghandel och omgivande butiker. Stadsparken likväl som stadens läge vid ån Lagan med sitt berömda laxfiske inbjuder till naturupplevelser och promenader. Närbelägna Glänningesjö öster om stadskärnan är rekreationsområde med badsjö, idrottsplats och motionsspår. Förutom att vara centrum för kommunal förvaltning har Laholm också olika vårdinrättningar. Den idylliska och vänliga staden kan erbjuda det mesta, här finns allt från livsmedelsbutiker, restauranger och kaféer till systembolag, tandvård, banker, och biograf.
Förskolor, skolor F-3 och F-6, Lagaholmsskolan 7-9, Osbecksgymnasiet. Idrottshall, simhall, vårdcentraler, distriktssköterska, äldreboende, vuxenutbildning, arbetsförmedling, polisstation, räddningstjänst, bibliotek.
Avstånd:
Halmstad 28 km
Göteborg 165 km
Malmö 120 kmKommunikation
Gamla järnvägsstationen är nu busstation med förbindelser till grannkommunerna och kommunens olika tätorter. I utkanten av stan ligger den nya järnvägsstationen med Öresundståg till såväl Köpenhamn som Göteborg.
Buss med Hallandstrafiken.
Tågstation Laholm och Båstad.
E:6 av/på fart Skottorp, Östra-Karup/Båstad samt Laholm.Övrigt om området
Laholm är Hallands äldsta stad och länets sydligaste kommun. Drygt 25 000 invånare samsas i den lilla västkustskommunen som har ett varierat landskap. Kusten med Sveriges längsta sandstrand, Hallandsåsen med södra Sveriges största skidanläggning, Öppna landskap och jordbruksbygd, Skog och inland med badsjöar och rekreationsområden är olika sidor av samma kommun. Laholm är centralorten med en gammal charmig stadskärna och små trevliga butiker runt Stortorget. Lagan sätter karaktär på staden och på dess väg ut till havet har den, under sommarhalvåret, sällskap av sportfiskare som alla är ute efter den populära laxen. Historian och konsten är påtaglig både i staden och på landsbygden och livet i kommunen präglas av fridfullhet vid såväl kusten som i inlandet. På den bördiga landsbygden finns livskraftigt jordbruk med mjölkkor, potatisåkrar och sädesfält. Här finns gårdsbutiker och ett stort antal hästgårdar. Vi som bor här är bortskämda med småskalighet och korta avstånd, men ändå med närhet till både nöjesmetropoler och storstäder. Några mil till Halmstads eller Ängelholms flygplatser gör att omvärlden finns inom räckhåll. Till Köpenhamn och den internationella flygplatsen Kastrup är det inte mer än ca 16 mil. Både Västkustbanan och E6 går igenom kommunen. De goda kommunikationerna gör att vi inte behöver avstå från storstadsliv och puls bara för att vi njuter av det goda livet på landet.
