Rumsbeskrivning Oxelvägen 12
Huvudentré till en stor och rymlig hall med goda förvaringsmöjligheter och trappa till ovanvåningen. Till vänster efter trappan finns det första sovrummet med bra garderobsutrymme. Rakt fram från hallen ligger ett stort sällskapsrum med gott om plats för både matbord och soffgrupp. Här finns också två utgångar till trädgården/altanen samt en täljstenskamin som ger bra extra värme och myskänsla.
Till höger från hallen nås köket och matplatsen som även nås från sällskapsrummet.
Vidare genom köket nås en separat avdelning med groventré, tvättstuga samt dusch och möjlighet att inreda bastu. Härifrån finns också utgång till garaget.
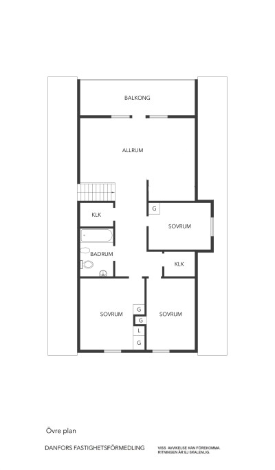
På ovanvåningen kommer man upp i ett öppet allrum med utgång till en balkong. På ovanvåningen finns också tre sovrum, ett helkaklat badrum samt två klädkammare.
Golvvärme i större delen av kök/matplats, hall och groventré.
Uppgifter om boarea är hämtade från taxeringsinformationen. Delar av biarean har på senare tid inretts till boarea och ny boarea är uppskattad till ca 200 kvm men är inte kontrollmätt.Kök
Induktionshäll, fläktkåpa, kylskåp (2020), frys (2020), integrerad diskmaskin. Köket renoverades och byggdes om 2008.
Badrum
Gäst-WC på entréplan med WC och handfat.
Separat dusch och möjlighet till bastu. (Bastu aggregat finns men har aldrig blivit använt.)
Helkaklat badrum på ovanvåningen med badkar, WC och handfat. Golvvärme. Renoverat 2003.Tvättstuga
Nyrenoverad tvättstuga (2020) med tvättmaskin, rejäl arbetsbänk, vask och bra med förvaringsutrymmen.
-
Kortfakta
TypFriliggande villaUpplåtelseformFriköptFast.beteckningDyreborg 1:47AdressOxelvägen 12Postadress312 51 KnäredOmrådeKnäredKommunLaholmBoarea/biarea167/57 m²AreakällataxeringsinformationAntal rum6 rum, varav 4 sovrumTomtarea1 331 m²Pris1 650 000 kr UtgångsprisByggnad
Byggnadstyp1½-plansvillaByggnadsår1975FasadTräStommeTräFönster2-glasBjälklagTräPlåtarbetePlåtTakBetongpannorGrundBetongplattaUppvärmningVärmepumpar luft/luft 2 st, täljstenskamin, direkt elVatten/avloppKommunalt vatten året om. Kommunalt avloppVentilationMekanisk frånluft.ÖvrigtTvättstuga ombyggd och renoverad 2020.
Täljstenskamin installerades ca 2017.
Kök samt stora delar av bottenvåningen renoverades 2008.
Badrummet på ovanvåningen renoverades 2003.Bilplats
Vidbyggt garage finns. Taket omlagt ca 2005.Driftskostnader
Hushållsel36 800 kr/årVatten/avlopp6 443 kr/årSotning1 100 kr/årRenhållning960 kr/årFörsäkring5 865 kr/årI elkostnaden ingår kostnad för både uppvärmning och hushållsel.Summa51 168 kr/år
(fastighetsavgift/skatt på 6 082 kr tillkommer)Energideklaration
StatusUtförd (2014-02-14)Energiförbrukning119 kWh/m2/år (ATEMP)EnergiklassFEl
Elbolag:Södra Hallands KraftFörsäkring
Länsförsäkringar. Bostaden är fullvärdesförsäkrad.Inskrivningar / Planbestämmelser
PlanbestämmelserByggnadsplan -
Om området
Knäred är den största orten i östra delen av Laholms kommun. Skola, vård och omsorg för unga och gamla gör orten också till ett centrum för den allmänna servicen. Här inbjuder milsvida skogar till svampplockning och vandring, här finns Lagan med tre kraftstationer och Krokån med uppskattade fiskemöjligheter. Knäred har kyrka, ett aktivt näringsliv, utomhusbad, camping, idrottsplats, fotbollsplan och tennisbanor. Mot Smålandsgränsen står minnesstenen som påminner om den omtalade freden i Knäred år 1613. Livsmedelsbutik med postservice, bensinmack, pizzeria, bank, hotell och ett antal butiker.
Förskola, skola F-6. Högstadium: Veinge. Folktandvården, vårdcentral, distriktssköterska, äldreboende, bibliotek, idrottsplats, tennisbanor, utomhusbassäng, räddningstjänst.
Avstånd:
Laholm 20 km
Halmstad 41 km
Markaryd 20 kmKommunikation
Väg 15. Buss med Hallandstrafiken. E4 25 km, E6 28 km.Övrigt om området
Laholm är Hallands äldsta stad och länets sydligaste kommun. Drygt 25 000 invånare samsas i den lilla västkustskommunen som har ett varierat landskap. Kusten med Sveriges längsta sandstrand, Hallandsåsen med södra Sveriges största skidanläggning, Öppna landskap och jordbruksbygd, Skog och inland med badsjöar och rekreationsområden är olika sidor av samma kommun. Laholm är centralorten med en gammal charmig stadskärna och små trevliga butiker runt Stortorget. Lagan sätter karaktär på staden och på dess väg ut till havet har den, under sommarhalvåret, sällskap av sportfiskare som alla är ute efter den populära laxen. Historian och konsten är påtaglig både i staden och på landsbygden och livet i kommunen präglas av fridfullhet vid såväl kusten som i inlandet. På den bördiga landsbygden finns livskraftigt jordbruk med mjölkkor, potatisåkrar och sädesfält. Här finns gårdsbutiker och ett stort antal hästgårdar. Vi som bor här är bortskämda med småskalighet och korta avstånd, men ändå med närhet till både nöjesmetropoler och storstäder. Några mil till Halmstads eller Ängelholms flygplatser gör att omvärlden finns inom räckhåll. Till Köpenhamn och den internationella flygplatsen Kastrup är det inte mer än ca 16 mil. Både Västkustbanan och E6 går igenom kommunen. De goda kommunikationerna gör att vi inte behöver avstå från storstadsliv och puls bara för att vi njuter av det goda livet på landet.
