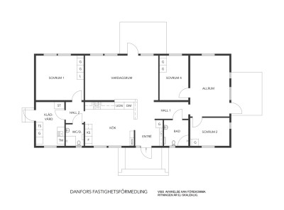
Rumsbeskrivning Hibiskusvägen 5
Entré via en rejäl trappa till en rymlig hall. Rakt fram öppnas sällskapsrummet upp med utrymme för både matplats och soffgrupp. I sällskapsrummet finns även altandörr ut till altandäcket och vidare trädgården. Köket är ljust och rymligt med vita köksluckor från Vedum och matplats vid fönster med vy mot framsidan. Vidare genom köket nås ett badrum med dusch, master bedroom samt tvättstugan och groventrén. I husets andra del finns ungdomsavdelningen med ett helkaklat badrum med badkar samt ett allrum. Från allrummet nås de båda andra sovrummen.
Genomgående ekparkett i alla rum bortsett från våtrum. Vitmålade interiöra väggar.
Är detta ditt drömhus? Härligt! Då går du raka vägen in på https://www.smalandsvillan.se/sok-tomt-bostad/hibiskusvagen-5/ och gör din intresseanmälan där. Och du, eftersom Smålandsvillan är en del av OBOS: passa på att bli OBOS-medlem om du inte redan är det. Medlemmar får ju förtur till köp, och dessutom massor av fina förmåner för husägare och blivande sådana. Förturen gäller även vid budgivningar, som OBOS-medlem har du möjlighet att matcha det högsta budet.Kök
Köksinredning från Vedum med vita luckor och kapitalvaror från Bosch. Köket är utrustat med spishäll, fläktkåpa, inbyggnadspaket med ugn och micro, kylskåp, frys, diskmaskin.
Badrum
Badrum 1: WC, kommod, badkar. Badrummet är helkaklat med neutrala färger. Här finns även komfortgolvvärme (el)
Badrum 2: WC, handfat och spegelskåp, duschhörna med vikdörrar. Våtrumsmatta på golv och vägg.Tvättstuga
Tvättmaskin, torktumlare samt värmepump och förvaring.
-
Kortfakta
TypFriliggande villaUpplåtelseformFriköptFast.beteckningLilla Tjärby 1:250AdressHibiskusvägen 5Postadress31235 LaholmOmrådeL:a TjärbyKommunLaholmBoarea122 m²AreakällataxeringsinformationAntal rum5 rum, varav 3 sovrumTomtarea1 151 m²Pris3 950 000 kr UtgångsprisByggnad
Byggnadstyp1-plansvillaByggnadsår2023FasadTräStommeTräFönster3-glas, aluminiumklädda träfönsterBjälklagTräTakBetongpannorGrundKrypgrund (isolergrund)UppvärmningFrånluftsvärmepump (NIBE F730), radiatorerVatten/avloppKommunalt vatten året om. Kommunalt avloppVentilationMekanisk (endast frånluft)Övriga byggnader/utrymmenFörrådsbyggnadÖvrigtFiber finns i gatan och anslutning ombesörjs och bekostas av köparen.Uteplats/balkong
Rymligt altandäck på trädgårdssidan.Driftskostnader
Uppvärmning24 570 kr/årVatten/avlopp3 750 kr/årRenhållning3 001 kr/årFörsäkring4 000 kr/årDå huset aldrig varit bebott saknas faktiska driftskostnader. Angivna driftskostnader är uppskattade driftskostnader.Summa35 321 kr/årEl
Elbolag:Södra Hallands KraftElleverantör:Södra Hallands KraftElförbrukning:9100 kWh/årFörsäkring
Bostaden är fullvärdesförsäkrad.Inskrivningar / Planbestämmelser
PlanbestämmelserDetaljplan (2008-10-30) -
Övrigt om området
Laholm är Hallands äldsta stad och länets sydligaste kommun. Drygt 25 000 invånare samsas i den lilla västkustskommunen som har ett varierat landskap. Kusten med Sveriges längsta sandstrand, Hallandsåsen med södra Sveriges största skidanläggning, Öppna landskap och jordbruksbygd, Skog och inland med badsjöar och rekreationsområden är olika sidor av samma kommun. Laholm är centralorten med en gammal charmig stadskärna och små trevliga butiker runt Stortorget. Lagan sätter karaktär på staden och på dess väg ut till havet har den, under sommarhalvåret, sällskap av sportfiskare som alla är ute efter den populära laxen. Historian och konsten är påtaglig både i staden och på landsbygden och livet i kommunen präglas av fridfullhet vid såväl kusten som i inlandet. På den bördiga landsbygden finns livskraftigt jordbruk med mjölkkor, potatisåkrar och sädesfält. Här finns gårdsbutiker och ett stort antal hästgårdar. Vi som bor här är bortskämda med småskalighet och korta avstånd, men ändå med närhet till både nöjesmetropoler och storstäder. Några mil till Halmstads eller Ängelholms flygplatser gör att omvärlden finns inom räckhåll. Till Köpenhamn och den internationella flygplatsen Kastrup är det inte mer än ca 16 mil. Både Västkustbanan och E6 går igenom kommunen. De goda kommunikationerna gör att vi inte behöver avstå från storstadsliv och puls bara för att vi njuter av det goda livet på landet.
