Rumsbeskrivning Våxtorpsvägen 33
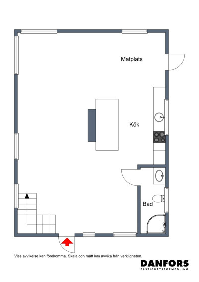
Entré till bostaden sker antingen från innergården eller från husets gavel. Båda entréerna leder in i den stora öppna planlösningen på entréplan. I ena delen finns ett smakfullt kök med en praktisk köksö och övriga delar består av stora sällskapsutrymmen. I anslutning till köket ligger det ena badrummet med dusch.
På ovanvåningen kommer man upp i ett mindre allrum varifrån de övriga rummen nås. Här finns två sovrum samt det andra helkaklade badrummet. Master bedroom har gott om garderobsförvaring samt tak som öppnats till nock. Gästrummet har stora fönster med fantastisk utsikt över åkrarna.Kök
Spis, spisfläkt, inbyggd mikro och ugn, kyl/frys, diskmaskin. Kakel som stänkskydd.
Badrum
Badrum 1: Helkaklat badrum med WC, handfat, dusch.
Badrum 2: Helkaklat badrum där man tagit ut svängarna med häftigt kakel/klinker. I badrummet finns WC, handfat, badkar samt tvättmaskin.-
Kortfakta
TypFriliggande villaUpplåtelseformFriköptFast.beteckningHasslöv 2:18AdressVåxtorpsvägen 33Postadress31297 LaholmOmrådeHasslövKommunLaholmBoarea/biarea110/72 m²AreakällataxeringsinformationAntal rum4 rum, varav 2 sovrumTomtarea1 431 m²Pris1 995 000 kr UtgångsprisByggnad
Byggnadstyp1½-plansvilla med källareByggnadsår1942FasadMålat tegelStommeTräFönster3-glasBjälklagTräTakBetongpannorGrundKällareUppvärmning2 st värmepumpar luft/luft (2022) samt braskaminVatten/avloppEnskilt vatten året om. Enskilt avloppVentilationSjälvdragÖvriga byggnader/utrymmenUthus med sovloft och uterum. Uthuset lämpar sig att använda som gästrum, hobbyrum eller liknande.Uteplats/balkong
Mindre uterum i anslutning till uthuset.Bilplats
Grusad innergård med plats för flertalet bilar.TV- och internetanslutning
Bredband: Fiber.Driftskostnader
Uppvärmning24 000 kr/årSotning1 500 kr/årRenhållning3 000 kr/årFörsäkring6 695 kr/årI kostnaden för renhållning ingår även kostnad för slamtömning. I uppvärmningskostnaden ingår även hushållsel.Summa35 195 kr/år
(fastighetsavgift/skatt på 8 498 kr tillkommer)Energideklaration
StatusUtförd (2024-03-19)Energiförbrukning50 kWh/m2/år (ATEMP)Primärtenergital96 kWh/m2/årEnergiklassDEl
Elbolag:Södra Hallands KraftElleverantör:Södra Hallands KraftElförbrukning:10164 kWh/årFörsäkring
Länsförsäkringar. Bostaden är fullvärdesförsäkrad.Inskrivningar / Planbestämmelser
Rättigheter / gemensamhetsanläggningarFörmån: Avtalsservitut Avloppsanläggning, 1381IM-04/23762.1 -
Om området
Hasslöv, kommunens minsta tätort är naturskönt belägen vid den grönskande Hallandsås. Utsikten över den uppodlade Laholmsslätten är enastående och Dömestorps strövområde på åssluttningen är ett populärt utflyktsmål av riksintresse. Lugnarohögen, en gravhög från yngre bronsåldern är välkänd långt utanför kommungränsen. Linnélärjungen Pehr Osbeck, som var präst i Hasslövs kyrka på 1700-talet har gett namn åt naturfagra Osbecks bokskogar på åsen. Engagemanget för bygden och byns föräldrastyrda friskola är stort och närheten till E 6, Laholm och Båstad gör byn med sitt bostadsområde på sluttningen attraktivt också för pendlare. I Hasslöv finns bland annat växtbutik och bygdegård. Med endast 8 km till havet är detta orten som har nära till det mesta.
Skola F-6. Högstadium: Våxtorp. Bokbuss.
Avstånd:
Laholm 15 km
Halmstad 35 km
Kommunikation
Nära till E6. Buss med Hallandstrafiken.Övrigt om området
Laholm är Hallands äldsta stad och länets sydligaste kommun. Drygt 25 000 invånare samsas i den lilla västkustskommunen som har ett varierat landskap. Kusten med Sveriges längsta sandstrand, Hallandsåsen med södra Sveriges största skidanläggning, Öppna landskap och jordbruksbygd, Skog och inland med badsjöar och rekreationsområden är olika sidor av samma kommun. Laholm är centralorten med en gammal charmig stadskärna och små trevliga butiker runt Stortorget. Lagan sätter karaktär på staden och på dess väg ut till havet har den, under sommarhalvåret, sällskap av sportfiskare som alla är ute efter den populära laxen. Historian och konsten är påtaglig både i staden och på landsbygden och livet i kommunen präglas av fridfullhet vid såväl kusten som i inlandet. På den bördiga landsbygden finns livskraftigt jordbruk med mjölkkor, potatisåkrar och sädesfält. Här finns gårdsbutiker och ett stort antal hästgårdar. Vi som bor här är bortskämda med småskalighet och korta avstånd, men ändå med närhet till både nöjesmetropoler och storstäder. Några mil till Halmstads eller Ängelholms flygplatser gör att omvärlden finns inom räckhåll. Till Köpenhamn och den internationella flygplatsen Kastrup är det inte mer än ca 16 mil. Både Västkustbanan och E6 går igenom kommunen. De goda kommunikationerna gör att vi inte behöver avstå från storstadsliv och puls bara för att vi njuter av det goda livet på landet.
