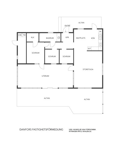
Rumsbeskrivning Fäladsvägen 26
Rymlig ljus entré med högfönster intill entrédörren. Här ges plats för klädavhängning. Till höger från hallen nås de tre sovrummen samt badrummet. Två mindre sovrum samt ett större sovrum med angränsande klädkammare och egen utgång till uterummet.
Köket är inrett med stilrena vita släta skåpsluckor, mörk glasskiva ovan köksbänk och rostfria kapitalvaror. Från köket nås framsidan via altandörr ut till köksaltanen åt norr. Köket och matplatsen känns rymligt tack vare den stora öppningen mot vardagsrummet. Vardagsrummet flödar i ljus med stora fönsterpartier åt söder, tre mindre fönster åt öster samt glaspartier mot uterummet. Detta ger rummet ett härligt ljus och en öppenhet samt en känsla av att vara ute även om man befinner sig inomhus.
Från vardagsrummets altandörr stiger man ut till ett härligt och stort uterum med skjutbara dörr- och fönsterpartier. Här ges plats till mycket! Vidare från uterummet nås den stora öppna altanen där man kan följa solen från tidig morgon till sen kväll.
Ett mindre förråd nås utifrån och är inrett som tvättstuga med vvb, tvättmaskin samt förvaringshyllor.Kök
Kök från Ikea. Inrett med vita skåpsluckor, mörk glasskiva ovan köksbänk, spishäll (induktion), fläkt, inbyggnadsugn, kombinerad kyl/frys, diskmaskin, bänkskiva laminat, utgång till altan åt norr, plastmatta golv, vitmålad träpanel tak.
Entré/hall
Inrett med laminatgolv, klädavhängning, hatthylla, högfönster intill ytterdörr, vitmålad träpanel tak.
Sovrum 1&2
Inrett med laminatgolv, tapet, vitmålad träpanel tak, fönster åt söder mot uterummet.
Sovrum 3
Inrett med laminatgolv, tapet, vitmålad träpanel tak, klädkammare, fönster och altandörr mot söder ut mot uterummet.
Badrum
Inrett med plastmatta golv, klinker, wc, tvättställ, dusch, fläkt, vädringsfönster åt norr.
Vardagsrum
Ljust vardagsrum med fönsterpartier mot söder och väster mot uterummet, tre mindre fönster åt öster, trägolv, vitmålad träpanel tak.
Uterum
Stort uterum på ca 30 kvm, vitmålat innertak samt kanalplast, trägolv, skjutbara fönsterpartier/dörrparti ut mot intilliggande altan.
Friggebod
Isolerad inredd gäststuga med indragen el, ca 8 kvm.
-
Kortfakta
TypFritidshusUpplåtelseformFriköptFast.beteckningAllarp 2:344AdressFäladsvägen 26Postadress31272 SkummeslövsstrandOmrådeSkummeslövsstrandKommunLaholmBoarea72 m²AreakällataxeringsinformationAntal rum4 rum, varav 3 sovrumTomtarea688 m²Pris3 800 000 krByggnad
ByggnadstypFritidshusByggnadsår1978FasadTräStommeTräFönster3-glasBjälklagTräPlåtarbeteLackerad plåtTakBetongpannorGrundKrypgrundUppvärmningLuft/luft-värmepump, radiatorer.Vatten/avloppKommunalt vatten året om. Kommunalt avloppVentilationSjälvdragÖvriga byggnader/utrymmenIsolerad och Inredd friggebod på ca 8 kvm.
Redskapsförråd intill friggebod.Övrigt2012 - Ny golvbrunn, våtrumsmatta badrum.
2012 - Vvb, ny golvbrunn tvättstuga.
2012 - Krypgrundsavfuktare, iordningställande krypgrund.
2013 - Luft/luft-värmepump, jordfelsbrytare.
2014 - Renovering/ombyggnad kök, nya 3-glasfönster aluminium.
2015 - Byte av yttertak, läkt, papp, betongpannor, bytt delar av råspont.
2018 - Fiber
2021 - Installerat 3-fas (för el bil)
2024 - Nytt innergolv vardagsrum
2012- 2024 Löpande underhåll målning, plantering, ny ytterpanel (delvis) m.m.Tomten
Härlig uppvuxen tomt med fin inramning med Tujahäck.
Hörntomt.Uteplats/balkong
Stor härlig terrass i söderläge.
Inglasat uterum/veranda.Bilplats
Singlad uppfart.Driftskostnader
Hushållsel16 050 kr/årVatten/avlopp4 200 kr/årVäg/samfällighetsavgift1 500 kr/årRenhållning1 900 kr/årFörsäkring3 642 kr/årSumma27 292 kr/år
(fastighetsavgift/skatt på 10 074 kr tillkommer)El
Elbolag:Södra Hallands KraftElleverantör:Södra Hallands KraftElförbrukning:7006 kWh/årFörsäkring
Dina försäkringar. Bostaden är fullvärdesförsäkrad.Inskrivningar / Planbestämmelser
Rättigheter / gemensamhetsanläggningarGemensamhetsanläggning: Laholm allarp ga:2 ändamål: Avloppsanläggning, Grönområden
Gemensamhetsanläggning: Laholm allarp ga:3 ändamål: Elledning och/eller belysningPlanbestämmelserByggnadsplan (1973-01-22) -
Om området
Fantastiska Skummeslövsstrand lockar allt fler till permanent boende. Likväl badortens kustbebyggelse som ortens nyare bostadsområden utvecklas. Närheten till hav och grönska tillsammans med goda kommunikationsmöjligheter, både norrut och söderut, gör orten attraktiv. Ca en fjärdedel av Skummeslövsstrands hus är bebodda året om och tillsammans med Mellbystrand utgör orten kommunens kustzon. Stranden, mer specifikt en del av Sveriges längsta sandstrand, är långgrunt barnvänlig och där finns även en fantastisk nybyggd brygga.
I Skummeslövsstrand bor du i lugn och ro men med närhet till puls i form av Halmstad och sommar-Båstad. Här befinner du dig även nära Båstad tågstation och E6:an och på orten finns flera motions- och vandringsslingor, naturreservat, camping, föreningsverksamhet samt tempererad utomhusbassäng under sommaren. Här finns även närbutik, vårdcentral, bank, tennisbanor, bageri, restauranger och i grannorterna Mellbystrand och Båstad finns stormarknader, padelbanor, golfbanor m.m.
Varmt välkommen till Skummeslövsstrand!
Förskola: Skummeslövsstrand
Skola F-6: Skottorp samt Mellbystrand
Högstadium: Våxtorp samt LaholmKommunikation
Buss med Hallandstrafiken
Båstad tågstation
Laholm tågstation
E6: av-/påfart Mellbystrand, Skottorp/Skummeslövsstrand, Östra Karup/Båstad
Riksväg 24
Flygplatser: Ängelholm/Helsingborg Airport samt Halmstad City Airport och Copenhagen Airport.
AVSTÅND
Laholm: 1-1,5 mil
Halmstad 3 mil
Båstad: 0,5-1 mil
Ängelholm/Helsingborg Airport: 2-2,5 mil
Helsingborg: ca 5 mil
Copenhagen Airport: 14 mil
