Rumsbeskrivning Kustvägen 198
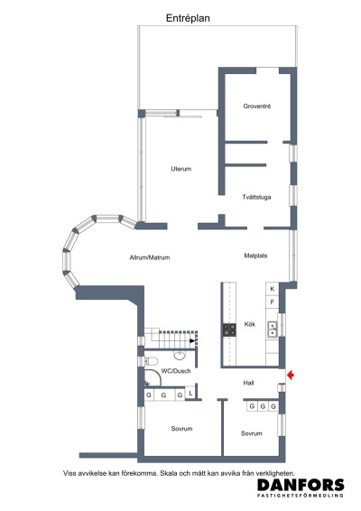
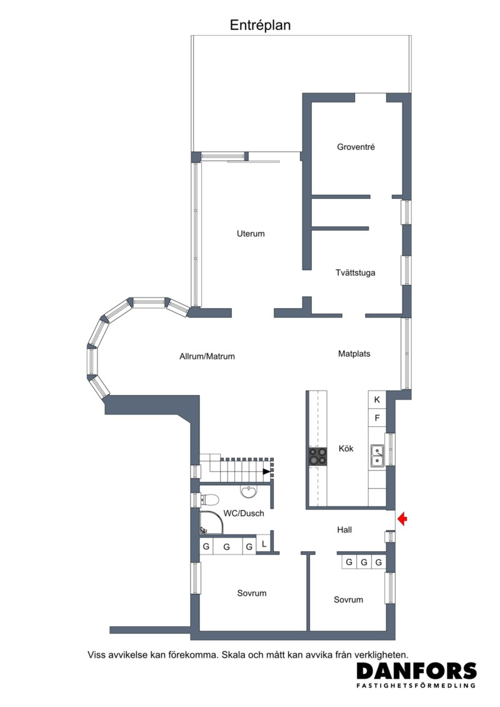
Välkommen in genom huvudentrén till en rymlig hall med ljust klinkergolv med elektrisk golvvärme. Här finns stora skjutdörrsgarderober med spegelglas i dörrarna och spotlights i taket. På vänster sida ligger två sovrum. Det större av sovrummen har utgång till den plattsatta uteplatsen med utedusch (inkl varmvatten). Rakt fram i hallen nås ett ljust helkaklat badrum med golvvärme (elektrisk). Till höger nås det stora öppna sällskapsrummet med gott om plats för både matsalsmöblemang och soffgrupp. I sällskapsrummet finns ett burspråk med fönster från golv till tak vilket ger ett härligt ljusinsläpp. Här finns också altandörr ut mot det vinterbonade uterummet. Uterummet är ca 25 kvm och nås från både allrummet och tvättstugan. Klinkerbelagt golv med golvvärme. Stora skjutpartier leder ut till uteplatsen med gjuten betongplatta. I anslutning till sällskapsrummet ligger köket med matplats vid burspråk. Påkostad köksinredning i massiv oljad ek samt en exklusiv bänkskiva i granit. Från köket nås även tvättstugan och groventrén. Groventrén är rymlig och med gott om förvaring samt en extra kyl och frys som ingår i överlåtelsen. Ljust klinker på golvet.
Nylagt (2025) parkettgolv i kök, sällskapsrum samt sovrum.
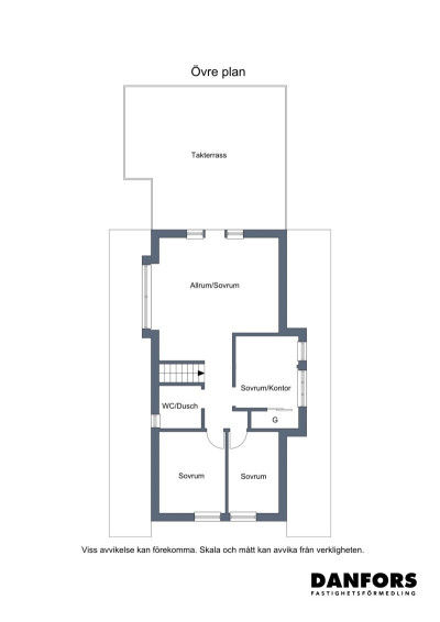
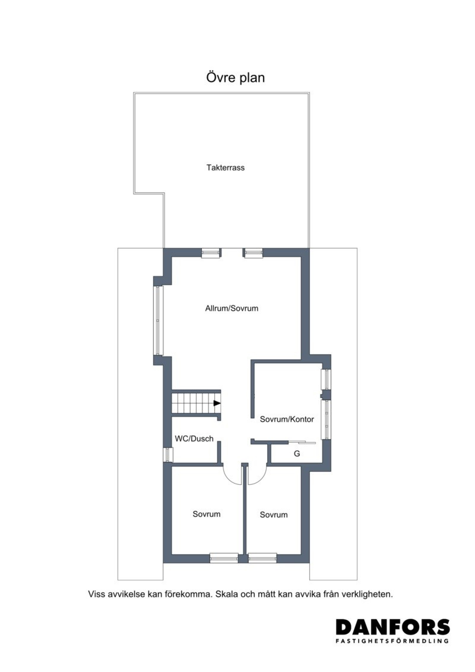
Ovanvåning: Från sällskapsrummet finns trappan till ovanvåningen. Här finns tre sovrum, det andra helkaklade och renoverade badrummet samt ett stort allrum med utgång till en rymlig takterrass med fantastisk utsikt! Takterrassen har smakfullt glasräcke och gott om plats för möblemang. Man har även utnyttjat takets lutning och platsbyggt en snygg solbänk.Kök
Köksinredning i massiv oljad ek och bänkskiva i granit. Kakel som stänkskydd. Ny diskbänk 2020. Rostfri spisfläkt (2020), inbyggd ugn (2024), induktionshäll, integrerad diskmaskin (2018), rostfritt kylskåp och frysskåp (2020). Parkettgolv med golvvärme.
Badrum
Badrum 1: WC, duschkabin, kommod, handdukstork. Badrummet är helkaklat med elektrisk golvvärme. Spotlights i taket.
Badrum 2: WC, handfat och dusch. Badrummet är helkaklat med elektrisk golvvärme och renoverades 2019.Tvättstuga
Tvättmaskin (2022) och torktumlare. Ljus skåpsinredning i björk samt tvättho nedsänkt i arbetsbänken.
-
Kortfakta
TypFriliggande villaUpplåtelseformFriköptFast.beteckningMellby 7:57AdressKustvägen 198Postadress312 61 MellbystrandOmrådeMellbystrandKommunLaholmBoarea/biarea182/35 m²AreakällataxeringsinformationAntal rum7 rum, varav 5–6 sovrumTomtarea1 261 m²Pris5 250 000 kr UtgångsprisByggnad
Byggnadstyp1½-plansvilla i vinkelByggnadsår1980FasadTegelStommeTräFönster3-glasBjälklagTräPlåtarbeteMålad galvad plåtGrundmurBetongTakBetongpannorGrundBetongplattaUppvärmningVärmepump luft/luft (ny 2024), direktverkande elVatten/avloppKommunalt vatten året om. Kommunalt avloppVentilationSjälvdragÖvriga byggnader/utrymmenDubbelgarage om ca 50 kvm. 3-fasuttag finns.
Mindre förrådsbod i trädgården - el finns framdraget men är ej inkopplat.Tomten
Stor och vackert anlagd trädgård med bra insynsskydd. Hela trädgården är inhägnad.Uteplats/balkong
I trädgården finns flertalet uteplatser med möjlighet att välja sin oas för dagen.TV- och internetanslutning
Bredband: Fiber finns installerat..Driftskostnader
Hushållsel28 500 kr/årVatten/avlopp6 200 kr/årVäg/samfällighetsavgift400 kr/årRenhållning1 400 kr/årFörsäkring3 300 kr/årI elkostnad ingår kostnad för uppvärmning. Avgift till samfällighet avser en årlig kostnad till underhåll av samfällig dagvattenledning.Summa39 800 kr/år
(fastighetsavgift/skatt på 10 425 kr tillkommer)Besiktning
Bostaden är besiktigad.Energideklaration
StatusUtförd (2018-08-23)Energiförbrukning66 kWh/m2/år (ATEMP)EnergiklassDEl
Elbolag:Södra Hallands KraftElleverantör:Södra Hallands KraftElförbrukning:16000 kWh/årFörsäkring
DINA. Bostaden är fullvärdesförsäkrad.Inskrivningar / Planbestämmelser
Rättigheter / gemensamhetsanläggningarGemensamhetsanläggning: Laholm mellby ga:5 ändamål: Vägar, Garage och/eller parkeringPlanbestämmelserDetaljplan (2009-03-05) -
Om området
Underbara Mellbystrand lockar allt fler till permanent boende. Med kombinationen av lugn och harmoni vid havet och grönområden tillsammans med goda kommunikationsmöjligheter och närhet till Halmstad, Båstad, Helsingborg är inte detta så konstigt…
Mellbystrand är beläget mellan E6 och havet och utgör tillsammans med Skummeslövsstrand kommunens kustzon. Sedan badorten etablerades i början av 1900-talet njuter sommargäster från när och fjärran livet vid Sveriges längsta sandstrand. I denna eftertraktade miljö med grönska och havet inpå knutarna är det allt fler som väljer att bosätta sig permanent här, men fortfarande består drygt hälften av bebyggelsen av fritidshus. Charmiga små dynstugor ger karaktär åt sanddynerna. Hallands sydligaste flod Lagan mynnar ut i havet vid natursköna Lagaoset och Hökafältet i norra Mellbystrand erbjuder flera motionsslingor.
I Mellbystrand finns även bekvämligheter såsom köpcentrum, stormarknad, närbutik, tennisbana, padelcenter, turistboende, butiker i olika branscher, läkarstation, bensinstationer, campingplatser, restauranger och mycket mer på orten!Kommunikation
Buss med Hallandstrafiken. Båstad tågstation. Laholm tågstation. E6: av-/påfart Mellbystrand. Riksväg 24Övrigt om området
Förskolor: finns flera i Mellbystrand.
Skola F-6: Mellbystrandsskolan. Belägen nära havet och blev tillbyggd samt renoverad 2014.
Högstadium: Laholm.
AVSTÅND
Laholm: 6 km.
Halmstad ca 2-2,5 mil.
Båstad: 1,5 mil.
Helsingborg: 6 mil.
Copenhagen Airport: 15 mil
