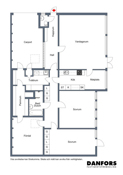
Rumsbeskrivning Sologatan 12
Från husets framsida välkomnas man in i en hall med gäst-WC. I hallen finns luftvärmepumpen samt braskaminen placerad. Till vänster ligger det rymliga sällskapsrummet med utgång till uterummet. Här finns gott om plats för umgänge både med matplats och utrymme för soffgrupp. I anslutning till sällskapsrummet ligger köket med en mindre matplats. Vidare in i huset nås badrummet med dusch samt tre sovrum. Från hallen nås också tvättstuga och pannrum. Ett av sovrummen är stort och har tidigare varit två sovrum vilket går att återställa för den som önskar.
.Kök
Modernt och praktiskt kök utrustat med spishäll, spisfläkt, kylskåp, frysskåp, integrerad diskmaskin samt inbyggd ugn och mikro.
Köket renoverades ca 2005.Badrum
Badrum: WC, handfat dusch och handdukstork (el). Renoverat 2012.
Gäst-WC: WC och handfat.Tvättstuga
Tvättmaskin och vask.
-
Kortfakta
TypFriliggande villaUpplåtelseformFriköptFast.beteckningLutan 1AdressSologatan 12Postadress312 34 LaholmOmrådeLaholmKommunLaholmBoarea/biarea119/21 m²Areakällataxeringsinformation. Taxeringen anger 119 kvm boarea.Antal rum4 rum, varav 3 sovrumTomtarea656 m²Pris2 395 000 kr UtgångsprisByggnad
Byggnadstyp1-plansvillaByggnadsår1965FasadMexitegelStommeTräFönster2-glasBjälklagTräPlåtarbetePlåtTakPapp (2017)GrundBetongplattaUppvärmningVattenburen el, värmepump luft/luft samt braskaminVatten/avloppKommunalt vatten året om. Kommunalt avloppVentilationSjälvdragRenovering2005-2006 - Interiöra ytskikt inkl nytt kök
2007 - Uterum tillbyggt.
2012 - Badrum och tvättstuga
2017 - Nytt takTomten
Större delen av trädgården är stenlagd.Uteplats/balkong
Uterum och en stor insynsskyddad innergård.Bilplats
Carport samt uppfart.TV- och internetanslutning
Bredband: Fiber finns installerat..Driftskostnader
Uppvärmning24 248 kr/årVatten/avlopp7 460 kr/årSotning200 kr/årRenhållning2 818 kr/årFörsäkring3 474 kr/årI uppvärmningskostnad ingår även kostnad för hushållsel.Summa38 200 kr/år
(fastighetsavgift/skatt på 10 425 kr tillkommer)Energideklaration
StatusUtförd (2024-08-12)Energiförbrukning62 kWh/m2/år (ATEMP)Primärtenergital111 kWh/m2/årEnergiklassDEl
Elbolag:Södra Hallands KraftElleverantör:FortumElförbrukning:11743 kWh/årFörsäkring
Länsförsäkringar. Bostaden är fullvärdesförsäkrad.Inskrivningar / Planbestämmelser
PlanbestämmelserTomtindelning (1964-03-21) Stadsplan (1961-04-29) -
Om området
Laholm är både den äldsta och den minsta staden i Halland. Den pittoreska och levande stadskärnan har välbevarad historisk bebyggelse med spår från danska tiden, som i stadsdelen Gamleby med smala gränder och låga hus. Stadens Teckningsmuseum är Nordens enda och Laholm kallas sedan länge Den lilla staden med de många konstverken. Ett är den praktfulla fontänen på Stortorget vilket också får liv av torghandel och omgivande butiker. Stadsparken likväl som stadens läge vid ån Lagan med sitt berömda laxfiske inbjuder till naturupplevelser och promenader. Närbelägna Glänningesjö öster om stadskärnan är rekreationsområde med badsjö, idrottsplats och motionsspår. Förutom att vara centrum för kommunal förvaltning har Laholm också olika vårdinrättningar. Den idylliska och vänliga staden kan erbjuda det mesta, här finns allt från livsmedelsbutiker, restauranger och kaféer till systembolag, tandvård, banker, och biograf.
Förskolor, skolor F-3 och F-6, Lagaholmsskolan 7-9, Osbecksgymnasiet. Idrottshall, simhall, vårdcentraler, distriktssköterska, äldreboende, vuxenutbildning, arbetsförmedling, polisstation, räddningstjänst, bibliotek.
Avstånd:
Halmstad 28 km
Göteborg 165 km
Malmö 120 kmKommunikation
Gamla järnvägsstationen är nu busstation med förbindelser till grannkommunerna och kommunens olika tätorter. I utkanten av stan ligger den nya järnvägsstationen med Öresundståg till såväl Köpenhamn som Göteborg.
Buss med Hallandstrafiken.
Tågstation Laholm och Båstad.
E:6 av/på fart Skottorp, Östra-Karup/Båstad samt Laholm.Övrigt om området
Laholm är Hallands äldsta stad och länets sydligaste kommun. Drygt 25 000 invånare samsas i den lilla västkustskommunen som har ett varierat landskap. Kusten med Sveriges längsta sandstrand, Hallandsåsen med södra Sveriges största skidanläggning, Öppna landskap och jordbruksbygd, Skog och inland med badsjöar och rekreationsområden är olika sidor av samma kommun. Laholm är centralorten med en gammal charmig stadskärna och små trevliga butiker runt Stortorget. Lagan sätter karaktär på staden och på dess väg ut till havet har den, under sommarhalvåret, sällskap av sportfiskare som alla är ute efter den populära laxen. Historian och konsten är påtaglig både i staden och på landsbygden och livet i kommunen präglas av fridfullhet vid såväl kusten som i inlandet. På den bördiga landsbygden finns livskraftigt jordbruk med mjölkkor, potatisåkrar och sädesfält. Här finns gårdsbutiker och ett stort antal hästgårdar. Vi som bor här är bortskämda med småskalighet och korta avstånd, men ändå med närhet till både nöjesmetropoler och storstäder. Några mil till Halmstads eller Ängelholms flygplatser gör att omvärlden finns inom räckhåll. Till Köpenhamn och den internationella flygplatsen Kastrup är det inte mer än ca 16 mil. Både Västkustbanan och E6 går igenom kommunen. De goda kommunikationerna gör att vi inte behöver avstå från storstadsliv och puls bara för att vi njuter av det goda livet på landet.
