Rumsbeskrivning Smålandsvägen 2
Entré sker via altanen in till en mindre hall, där du även hittar nedgången till tvättstugan. Köket är rymligt och lantligt med ekluckor och gott om plats för ett köksmöblemang.
Från köket går du vidare in i matsalen, som har en fin utsikt över trädgården i väster. Här finns även en mindre gästtoalett som ligger i anslutning till matsalen.
Fortsätter du genom matsalen når du huvudentrén och den större hallen, där trappan leder upp till ovanvåningen. Härifrån finns även pardörrar som öppnar upp till vardagsrummet. Vardagsrummet är stort och har både en matsalsdel och en vardagsrumsdel, med en angränsande gäst- eller arbetsrum.
På ovanvåningen finns ett sällskapsrum med balkong mot väster, ett badrum och tre sovrum. Det största sovrummet kan delas av för att skapa ytterligare ett sovrum, om behovet finns.Köksentré
Entré sker via altanen in till mindre hall med golvtegel. till vänster vid hallen nås trappan ner till tvättstugan.
Kök
Lantligt och gediget ek kök. Utrustat med spis/ugn, fläkt, diskmaskin och kombinerad kyl och frys. Fönster mot trädgården åt öster.
Matsal
Matsal som angränsar till köket. Inrett med laminatgolv, tapet samt fönster med fin vy mot trädgården åt väster.
Gästtoalett
Liten gästtoalett som angränsar till matsalen. Utrustat med wc och tvättställ.
Entré/hall
Huvudentré som vetter mot väster och är inredd med trägolv, bröstpanel och klädförvaring. Vidare från entrén nås hallen med vackert vit pigmenterat trägolv, bröstpanel och mönstermålade väggar. Här nås trappan till ovanvåningen och pardörrar tar er vidare in till vardagsrummet.
Vardagsrum
Stort vardagsrum med både matsal och vardagsrumsdel. Inrett med parkettgolv, tapet och kamin (ej i bruk). Fönsterpartier åt öster och norr.
Arb.rum/sovrum
Arbetsrum alternativt gästrum som angränsar till vardagsrummet, inrett med plastmatta, tapet och fönster som vetter åt väster.
Sällskapsrum Ov
Öppet sällskapsrum med takkupa och balkong åt väster. Inrett med vit pigmenterat trägolv. Från detta rum nås ovanvåningens tre sovrum och badrum.
Badrum Ov
Inrett med plastmatta på golvet och kakel/vävtapet på väggarna. Utrustat med wc, tvättställ, badrumsskåp och dusch.
Sovrum 1 Ov
Stort sovrum som kan delas av till två rum för den som önskar. Inrett med vit pigmenterat trägolv, två fönster åt norr.
Sovrum 2 Ov
Sovrum inrett med trägolv, tapet, takkupa och fönster åt öster.
Sovrum 3 Ov
Sovrum med vit pigmenterat trägolv, fyra garderober och fönster åt söder.
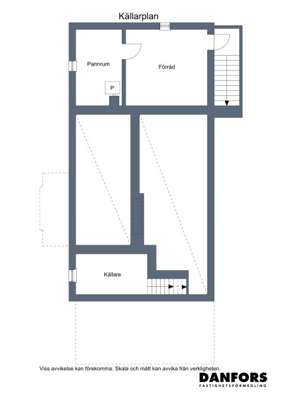
Tvättstuga Källare
Enklare tvättstuga med gråstensvägg och är utrustad med tvättmaskin, vask. Här finner man också vattenanläggningen med pump/hydrofor/filter..
Pannrum/förråd Källare
Via källartrappan från utsidan nås mindre källare som inhyser förråd och pannrum.
-
Kortfakta
TypFriliggande villaUpplåtelseformFriköptFast.beteckningLagered 4:28AdressSmålandsvägen 2Postadress31251 KnäredOmrådeKnäredKommunLaholmBoarea/biarea171/15 m²AreakällataxeringsinformationAntal rum7 rum, varav 3–4 sovrumTomtarea2 475 m²Pris1 375 000 krByggnad
Byggnadstyp1½-plansvilla med källareByggnadsår1923 (Ombyggt 1990)FasadTräStommeTräFönster2-/3-glasfönsterBjälklagTräPlåtarbetePlåtGrundmurNatursten/betongTakBetongpannorGrundKällare/torpargrundUppvärmningLuft/vatten-värmepump, vedpanna m. 1500L acc.tankVatten/avloppEnskilt vatten året om. Kommunalt avloppVentilationSjälvdragRenovering2019 - Rengöring och målning av takpannor.
1990 - Tillbyggt.Övriga byggnader/utrymmenFristående garage ca 31 kvm.
Jordkällare ca 7 kvm.
Fristående uthus/förråd ca 24 kvm.Uteplats/balkong
Veranda under takBilplats
Stenbelagd uppfart intill huset.
Garage med uppfart.TV- och internetanslutning
Bredband: Fiber.Driftskostnader
Hushållsel22 000 kr/årVatten/avlopp4 645 kr/årSotning517 kr/årRenhållning3 001 kr/årFörsäkring5 155 kr/årI elförbrukningen ingår uppvärmning/ved ca 10m3.Summa35 318 kr/år
(fastighetsavgift/skatt på 5 258 kr tillkommer)Besiktning
Bostaden är besiktigad.Energideklaration
StatusUtförd (2024-08-20)Energiförbrukning84 kWh/m2/år (ATEMP)Primärtenergital103 kWh/m2/årEnergiklassDEl
Elbolag:Södra Hallands KraftElleverantör:Södra Hallands KraftElförbrukning:13000 kWh/årFörsäkring
Länsförsäkringar. Bostaden är fullvärdesförsäkrad.Inskrivningar / Planbestämmelser
PlanbestämmelserDetaljplan (1996-09-26) Byggnadsplan (1967-09-08) -
Om området
Knäred är den största orten i östra delen av Laholms kommun. Skola, vård och omsorg för unga och gamla gör orten också till ett centrum för den allmänna servicen. Här inbjuder milsvida skogar till svampplockning och vandring, här finns Lagan med tre kraftstationer och Krokån med uppskattade fiskemöjligheter. Knäred har kyrka, ett aktivt näringsliv, utomhusbad, camping, idrottsplats, fotbollsplan och tennisbanor. Mot Smålandsgränsen står minnesstenen som påminner om den omtalade freden i Knäred år 1613. Livsmedelsbutik med postservice, bensinmack, pizzeria, bank, hotell och ett antal butiker.
Förskola, skola F-6. Högstadium: Veinge. Folktandvården, vårdcentral, distriktssköterska, äldreboende, bibliotek, idrottsplats, tennisbanor, utomhusbassäng, räddningstjänst.
Avstånd:
Laholm 20 km
Halmstad 41 km
Markaryd 20 kmKommunikation
Väg 15. Buss med Hallandstrafiken. E4 25 km, E6 28 km.Övrigt om området
Laholm är Hallands äldsta stad och länets sydligaste kommun. Drygt 25 000 invånare samsas i den lilla västkustskommunen som har ett varierat landskap. Kusten med Sveriges längsta sandstrand, Hallandsåsen med södra Sveriges största skidanläggning, Öppna landskap och jordbruksbygd, Skog och inland med badsjöar och rekreationsområden är olika sidor av samma kommun. Laholm är centralorten med en gammal charmig stadskärna och små trevliga butiker runt Stortorget. Lagan sätter karaktär på staden och på dess väg ut till havet har den, under sommarhalvåret, sällskap av sportfiskare som alla är ute efter den populära laxen. Historian och konsten är påtaglig både i staden och på landsbygden och livet i kommunen präglas av fridfullhet vid såväl kusten som i inlandet. På den bördiga landsbygden finns livskraftigt jordbruk med mjölkkor, potatisåkrar och sädesfält. Här finns gårdsbutiker och ett stort antal hästgårdar. Vi som bor här är bortskämda med småskalighet och korta avstånd, men ändå med närhet till både nöjesmetropoler och storstäder. Några mil till Halmstads eller Ängelholms flygplatser gör att omvärlden finns inom räckhåll. Till Köpenhamn och den internationella flygplatsen Kastrup är det inte mer än ca 16 mil. Både Västkustbanan och E6 går igenom kommunen. De goda kommunikationerna gör att vi inte behöver avstå från storstadsliv och puls bara för att vi njuter av det goda livet på landet.
