Rumsbeskrivning Högarydsvägen 67
Entré sker in till rymlig hall. Vidare från hallen nås tvättstugan och sällskapsrummet. Finns även passage till garaget och trappa upp till ovanvåningen.
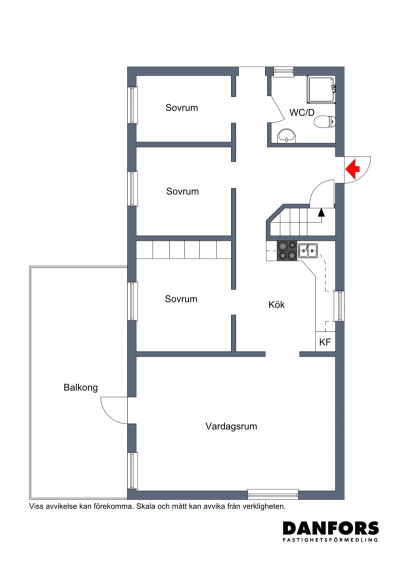
Ovanvåningen inhyser ljus entré och hall som tar en vidare till badrum de tre sovrummen samt köket. I angränsning till köket finner man ett stort ljust vardagsrum med utgång till det inglasade uterummet.
Fastigheten säljs av åldersskäl och med friskrivningsklausul.Entré/hall (Bv)
Entré in till rymlig hall med laminatgolv och plats för klädavhängning. Trappan till övreplan nås från detta rum samt passage till källargaraget. (pågående arbete med golv och väggar entré)
Tvättstuga Bv
Enklare tvättstuga med målat betonggolv, putsade väggar, vask och tvättmaskin.
Sällskapsrum Bv
Stort sällskapsrum inrett med plastmatta, bröstpanel samt fönsterpartier ut mot framsidan av huset.
Entré/hall Ov
Ljus entré med plastmatta, bröstpanel, vävtapet. Från entrén finns trapp ner till nedreplan.
Badrum Ov
Inrett med plastmatta, våtrumsmatta, wc, tvättställ, dusch samt vädringsfönster.
Sovrum 1 & 2 Ov
Dessa två sovrum är inredda med plastmatta, vävtapet samt fönster åt väster.
Kök Ov
Genomgångskök med köksinredning av furu. Utrustat med spis/ugn, fläkt, kombinerad kyl/frys, diskmaskin, kakel ovan köksbänk och köksfönster som vetter åt öster.
Sovrum 3 Ov
Detta större sovrum är inrett med trägolv, fem garderober samt fönster åt väster.
Vardagsrum ov
Stort ljust vardagsrum med utgång till det inglasade uterummet. Inrett med plastmatta, vävtapet, träpanel på kortvägg samt fönsterparti åt söder och mot uterummet.
Källargarage
Garage med gjutet betonggolv.
-
Kortfakta
TypFritidshusUpplåtelseformFriköptFast.beteckningNorra össjö 3:55AdressHögarydsvägen 67Postadress312 53 HishultOmrådeHishultKommunLaholmBoarea/biarea82/30 m²Areakällataxeringsinformation, säljarens informationAntal rum5 rum, varav 3 sovrumTomtarea1 711 m²Pris850 000 krByggnad
ByggnadstypFritidshusByggnadsår2004 (Nybyggt/ombyggt 2004)FasadTräStommeTräFönster2-/3-glasfönsterBjälklagTräPlåtarbetePlåtTakPlåtGrundKällareUppvärmningLuft/luft-värmepump, radiatorerVatten/avloppEnskilt vatten året om. Enskilt avlopp. 3-kammarbrunn med infiltration. Vattenförsörjningen (djupborrad brunn) delas med tre fastigheter.VentilationSjälvdragÖvriga byggnader/utrymmenGarage.
Vedförråd.Tomten
Öppen trädgårdstomt med skogen som angränsar åt öster.Uteplats/balkong
Inglasat uterum på övreplan.
Terrass under det inglasade uterummet.
Stensatt terrass vid östra sidan av bostaden.Bilplats
Fristående garage, ca 15 kvm
Källargarage, ca 15 kvmDriftskostnader
Hushållsel17 200 kr/årVatten/avlopp1 000 kr/årRenhållning3 000 kr/årFörsäkring4 000 kr/årSumma25 200 kr/år
(fastighetsavgift/skatt på 3 908 kr tillkommer)El
Elbolag:Södra Hallands KraftElleverantör:Södra Hallands KraftElförbrukning:6600 kWh/årFörsäkring
Länsförsäkringar. Bostaden är fullvärdesförsäkrad.Inskrivningar / Planbestämmelser
Rättigheter / gemensamhetsanläggningarFörmån: Officialservitut Väg, 13-HIS-808.1 -
Om området
Hishult är ett välskött samhälle mitt i naturen. Här finner barnfamiljer och andra en lugn boendemiljö och här finns konsthallen som visar samtidskonst och lockar tiotusentals besökare varje år. Orten har kyrka, gästgiveri, livsmedelsbutik med postservice, bensinmack och bank. Härifrån är det 27 km till havet och Hishult ligger mitt emellan tätorterna Markaryd och Laholm.
utanför Hishult ligger Sjöboholms slottsruin vackert beläget vid Oxhultssjön. I området kan du ägna dig åt friluftsaktiviteter som fiske, kanot, cykling, golf och fotboll.
Nybyggd skola, F-6. Högstadium i Våxtorp. Idrottsplats, bokbuss, räddningstjänst.
Avstånd:
Laholm 20 km
Halmstad 5 km
Markaryd 1,5 km
Helsingborg 80 km
Malmö 14 kmKommunikation
Buss med Hallandstrafiken.Övrigt om området
Laholm är Hallands äldsta stad och länets sydligaste kommun. Drygt 25 000 invånare samsas i den lilla västkustskommunen som har ett varierat landskap. Kusten med Sveriges längsta sandstrand, Hallandsåsen med södra Sveriges största skidanläggning, Öppna landskap och jordbruksbygd, Skog och inland med badsjöar och rekreationsområden är olika sidor av samma kommun. Laholm är centralorten med en gammal charmig stadskärna och små trevliga butiker runt Stortorget. Lagan sätter karaktär på staden och på dess väg ut till havet har den, under sommarhalvåret, sällskap av sportfiskare som alla är ute efter den populära laxen. Historian och konsten är påtaglig både i staden och på landsbygden och livet i kommunen präglas av fridfullhet vid såväl kusten som i inlandet. På den bördiga landsbygden finns livskraftigt jordbruk med mjölkkor, potatisåkrar och sädesfält. Här finns gårdsbutiker och ett stort antal hästgårdar. Vi som bor här är bortskämda med småskalighet och korta avstånd, men ändå med närhet till både nöjesmetropoler och storstäder. Några mil till Halmstads eller Ängelholms flygplatser gör att omvärlden finns inom räckhåll. Till Köpenhamn och den internationella flygplatsen Kastrup är det inte mer än ca 16 mil. Både Västkustbanan och E6 går igenom kommunen. De goda kommunikationerna gör att vi inte behöver avstå från storstadsliv och puls bara för att vi njuter av det goda livet på landet.
