Idévägen 27

Mellby - Mellbystrand

Modern lokal till uthyrning

Modern lokal uthyres med möjlighet att hyra hela eller delar av lokalen efter överenskommelse. Byggnaden uppfördes 2018 och med ett bra strategiskt läge nära E6 lämpar sig lokalerna väl för flera typer av verksamheter. Lokalen består av en kontorsdel med tillhörande WC och kök/personalrum samt en maskinhall/lager med tillhörande omklädningsrum, WC och tvättmöjligheter. Inhägnad och hårdgjord tomtmark med möjlighet att hyra extra uppställningsplats. Välkommen att boka en visning på plats!

Fiber finns anslutet. Hyran sätts efter överenskommelse och avtalas beroende på vad som önskas hyra (hela eller delar). Hyran avser kallhyra och inkluderar VA.

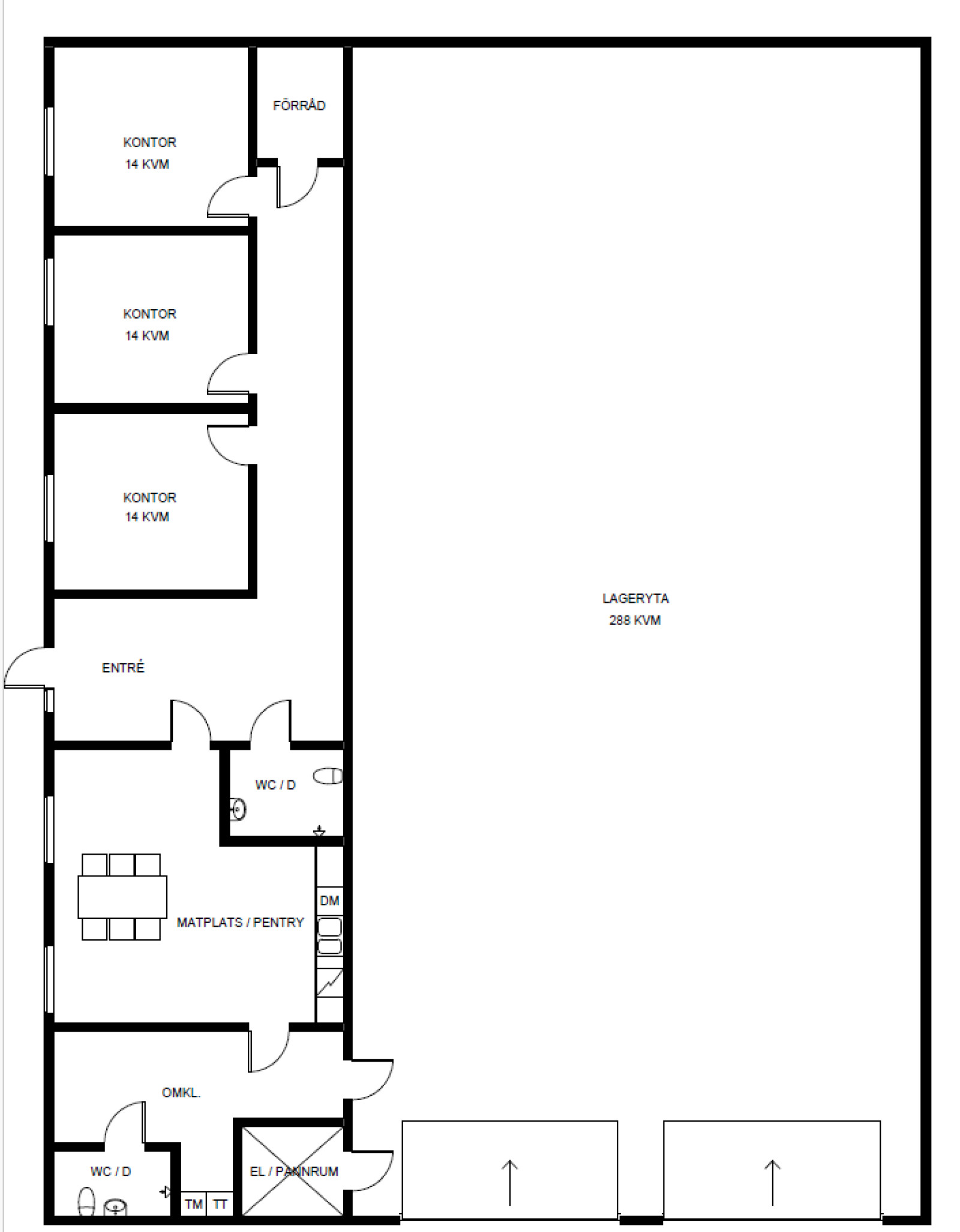
Kontorsdel, 123 kvm:
Modern lokal med hög komfort. Lokalen består av tre rymliga kontorsrum, förråd, badrum samt ett rejält kök/ personalrum. Extra avlastningsyta och plats för skrivare mm finns i passagen mellan kontorsrummen. Uppvärmning via en värmepump luft/vatten och vattenburen golvvärme i hela lokalen, akustiktak, mjuk heltäckningsmatta i kontorsrummen m.m. ger en hög komfort och en ombonad känsla. I entrén samt köket ligger ett praktiskt klinkergolv. Köket är fullt utrustat med dubbla mikrovågsugnar, ugn, spishäll, köksfläkt samt en kombinerad kyl/frys. I kontorsdelen finns även ett badrum med WC, handfat och dusch.

Maskinhall/lager, 305 kvm + 100 kvm entresol:
Rejäl hall med förstärkt platta om 288 kvm. Två rejäla vikportar (5 x 5 meter) och en takhöjd på 6,5 meter på den lägre delen och hela 9,5 meter på den högre. I anslutning till hallen finns även ett omklädningsrum med tvättmaskin och torkskåp samt ett badrum med WC, handfat och dusch. Entresolplan på 100 kvm finns och kan efter överenskommelse eventuellt nyttjas av en hyresgäst.

Visning
Kontakta mäklaren för visning.
Kontaktperson Elin Svala 070-672 82 32 elin@danfors.se
  • Kortfakta

    Typ
    Övrigt
    Upplåtelseform
    Hyresratt
    Fast.beteckning
    Mellby 23:26
    Adress
    Idévägen 27
    Postadress
    312 62 Mellbystrand
    Område
    Mellby - Mellbystrand
    Kommun
    Laholm

    Sammanställning areor

    Typ
    Yta
    Kontor
    123 kvm
    Lager/Logistik
    305 kvm
  • Är du intresserad av denna bostad?

    Fyll i formuläret nedan så återkommer vi till dig med mer information.
  • Om området

    Mellby - Mellbystrand lockar allt fler till permanent boende. Med kombinationen av lugn och harmoni vid havet och grönområden tillsammans med goda kommunikationsmöjligheter och närhet till Halmstad, Båstad, Helsingborg är inte detta så konstigt…

    Mellby är beläget på östra sidan av E6 mellan Mellbystrand och Laholm. Mellby utgör tillsammans med Mellbystrand och Skummeslövsstrand kommunens kustzon. Sedan badorten etablerades i början av 1900-talet njuter sommargäster från när och fjärran livet vid Sveriges längsta sandstrand. I denna eftertraktade miljö med grönska och havet inpå knutarna är det allt fler som väljer att bosätta sig permanent här, men fortfarande består drygt hälften av bebyggelsen av fritidshus. Charmiga små dynstugor ger karaktär åt sanddynerna. Hallands sydligaste flod Lagan mynnar ut i havet vid natursköna Lagaoset och Hökafältet i norra Mellbystrand erbjuder flera motionsslingor.

    I Mellbystrand finns även bekvämligheter såsom köpcentrum, stormarknad, närbutik, tennisbana, padelcenter, turistboende, butiker i olika branscher, läkarstation, bensinstationer, campingplatser, restauranger och mycket mer på orten!

    Kommunikation

    Buss med Hallandstrafiken. Båstad tågstation. Laholm tågstation. E6: av-/påfart Mellbystrand. Riksväg 24

    Övrigt om området

    Förskolor: finns flera i Mellbystrand.
    Skola F-6: Mellbystrandsskolan. Belägen nära havet och blev tillbyggd samt renoverad 2014.
    Högstadium: Laholm.

    Laholm: 6 km.
    Halmstad ca 2-2,5 mil.
    Båstad: 1,5 mil.
    Helsingborg: 6 mil.
    Copenhagen Airport: 15 mil