Rumsbeskrivning Signalvägen 11
Entré till en rymlig hall med vackert kalkstensgolv, trappa till ovanvåningen och smart förvaring under trappan. Direkt till höger nås ett stort sovrum med utgång till trädgården. Rakt fram nås det stora sällskapsrummet och kök med öppen planlösning. I sällskapsrummet finns stora fönsterpartier med dubbeldörrar ut mot altandäcket i söderläge. De stora fönsterpartierna ger ett härligt ljust och luftigt intryck i huset. Köket är påkostat med inredning från Marbodal, kapitalvaror från Siemens och bänkskiva i kompositsten. I köket finns en rymlig köksö där spishällen är placerad tillsammans med en exklusiv takfläkt från Thermex och extra diskho. Köket har gott om skåpsförvaring och stora arbetsytor. Till vänster från hallen nås ett helkaklat badrum med dusch och vidare även tvättstuga och groventré.
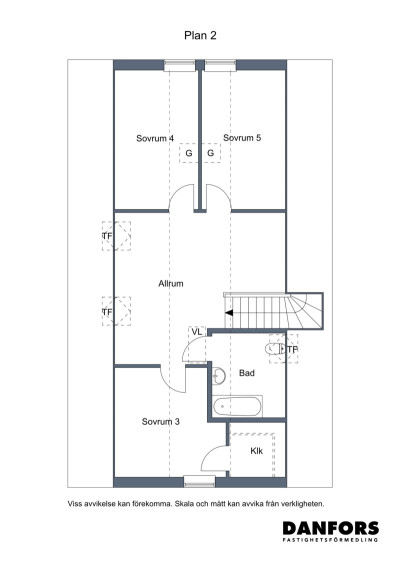
På ovanvåningen kommer man upp till ett luftigt allrum med dubbla takfönster som ger ett härligt ljust rum. På ovanvåningen finns även tre rymliga sovrum samt det andra helkaklade badrummet med dusch.
Golvvärme finns i hela entréplan samt i badrummet på ovanvåningen. Genomgående vackert och rutiskt trägolv behandlat med hårdvaxolja i alla utrymmen bortsett från våtrum och hall.Kök
Köksinredning från Marbodal arkitekt, kapitalvaror från Siemens och bänkskiva i kompositsten. Köket är utrustat med induktionshäll, köksfläkt från Thermex (infälld i tak), inbyggd mikro och ugn, integrerad kyl, frys och diskmaskin.
Badrum
Badrum BV: WC, handfat, duschväggar. Helkaklat med golvvärme.
Badrum OV: WC, handfat, duschväggar. Helkaklat med golvvärme.Tvättstuga/groventré
Tvättmaskin, torktumlare samt värmepump. Klinker på golvet och vitmålade väggar.
-
Kortfakta
TypFriliggande villaUpplåtelseformFriköptFast.beteckningHemmeslöv 5:55AdressSignalvägen 11Postadress26943 BåstadOmrådeHemmeslövKommunBåstadBoarea161 m²Areakällasäljarens informationAntal rum6 rum, varav 4 sovrumTomtarea764 m²Pris6 750 000 kr UtgångsprisByggnad
Byggnadstyp1½-plansvillaByggnadsår2018FasadTräStommeTräFönster3-glasBjälklagTräPlåtarbetePlåtTakPlåtGrundBetongplattaUppvärmningFrånluftsvärmepump (NIBE F730), golvvärme på BV och radiatorer på OV.Vatten/avloppKommunalt vatten året om. Kommunalt avloppVentilationMekanisk - FrånluftsvärmepumpTomten
Lättskött och insynsskyddad trädgård. Tomten är granne med grönområde vilket ger en fri trädgårdssida.Uteplats/balkong
Stor härlig altan i söderläge.Bilplats
Grusad biluppställningsplatsTV- och internetanslutning
Bredband: Fiber finns installerat.Driftskostnader
Uppvärmning22 326 kr/årVatten/avlopp11 492 kr/årRenhållning2 240 kr/årFörsäkring7 920 kr/årI uppvärmningskostnaden ingår kostnad för hushållsel.Summa43 978 kr/år
(fastighetsavgift/skatt på 11 540 kr tillkommer)Energideklaration
StatusUtförd (2025-04-29)Energiförbrukning28 kWh/m2/år (ATEMP)Primärtenergital52 kWh/m2/årEnergiklassBEl
Elbolag:Södra Hallands KraftElleverantör:TibberElförbrukning:6365 kWh/årFörsäkring
Tre Kronor. Bostaden är fullvärdesförsäkrad.Ekonomi
Taxeringsvärde1 154 000 kr (fastställt avseende år 2024)Taxeringsår2024Markvärde1 154 000 krSkatt/avgift11 540 krTypkod210, Småhusenhet, tomtmarkPantbrev
Totalt 2 st pantbrev om 4 500 000 kr.Inskrivningar / Planbestämmelser
Rättigheter / gemensamhetsanläggningarGemensamhetsanläggning: Båstad hemmeslöv ga:43 ändamål: Vägar, GrönområdenPlanbestämmelserDetaljplan (2016-04-27)Tillträde
Enligt överenskommelse -
Är du intresserad av denna bostad?
Fyll i formuläret nedan så återkommer vi till dig med mer information. -
