Rumsbeskrivning Saturnusvägen 14
Entré sker in till rymlig hall med fint ljusinsläpp från entréns båda sidofönster. Till höger om hallen nås det första sovrummet och groventrén samt entréplanets badrum. Vidare från hallen nås det andra sovrummet för att sedan stiga in i det härligt och luftiga allrummet med imponerande takhöjd upp till nock. Det öppna integrerade köket i allrummet med dess köksö skapar en social och inbjudande miljö med fina möjligheter till umgänge. Ovanvåningen nås via den eleganta svängda ek trappan som leder upp till övervåningens sällskapsrum med glas räcke mot allrummet. Från ovanvåningens sällskapsrum finner man en angränsande toalett, klädkammare och två sovrum.Entré/hall
Rymlig och ljus entré med stora fönsterpartier på båda sidor om ytterdörren som ger ett härligt ljusinsläpp. Direkt innanför entrén ligger ett mörkgrått klinkergolv som övergår till fint ekparkettgolv i resten av hallen. Här finns gott om plats för avhängning av ytterkläder, och den eleganta svängda ektrappan som leder upp till övervåningen är också placerad här.
Sovrum 1
Rummet är inrett med parkettgolv och målade väggar samt har ett fönsterparti i österläge som släpper in fint morgonljus. Här finns även en praktisk nisch som passar utmärkt för garderob eller klädförvaring.
Tvättstuga/groventré
Praktisk tvättstuga med groventré i norrläge mot uppfarten. Utrustad med slitstarkt klinkergolv, tvättmaskin, torktumlare samt städskåp.
Badrum
Generöst tilltaget badrum med klinkergolv och kaklade väggar. Utrustat med tvättställ, belyst spegel, wc samt dusch med praktiska vikdörrar. Vädringsfönster i västerläge ger fint dagsljus. Här finns även förberedelse för bastu.
Sovrum 2
Större sovrum med ekparkett samt tapetserade och målade väggar. Här finns två rymliga garderober med praktiska förvaringslådor samt ett fönsterparti i västerläge som ger fint eftermiddagsljus.
Allrum/kök
Härligt allrum med imponerande rymd tack vare öppet upp till nock och kontakt med ovanvåningens sällskapsrum. Rummet erbjuder gott om plats för både matgrupp i burspråksdelen och vardagsrumsmöbler i den större delen. Två utgångar leder vidare till den gjutna terrassen – en i söderläge vid burspråket och en i västerläge från allrummet. Det integrerade köket bidrar till en social planlösning och skapar en fin samvaro.
Kök
Köket är inrett i en varmgrå ton där mosaiken fungerar som en elegant färgklick. Den praktiska köksön erbjuder generös förvaring och är utrustad med vask, induktionshäll samt diskmaskin. Köket är fullt utrustat med fläkt, kyl, frys, inbyggnadsugn, inbyggd mikro och en lång arbetsbänk i mörkgrå nyans. Goda förvaringsmöjligheter erbjuds genom både över- och underskåp.
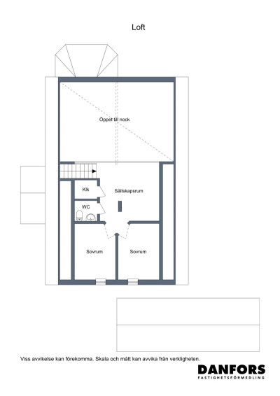
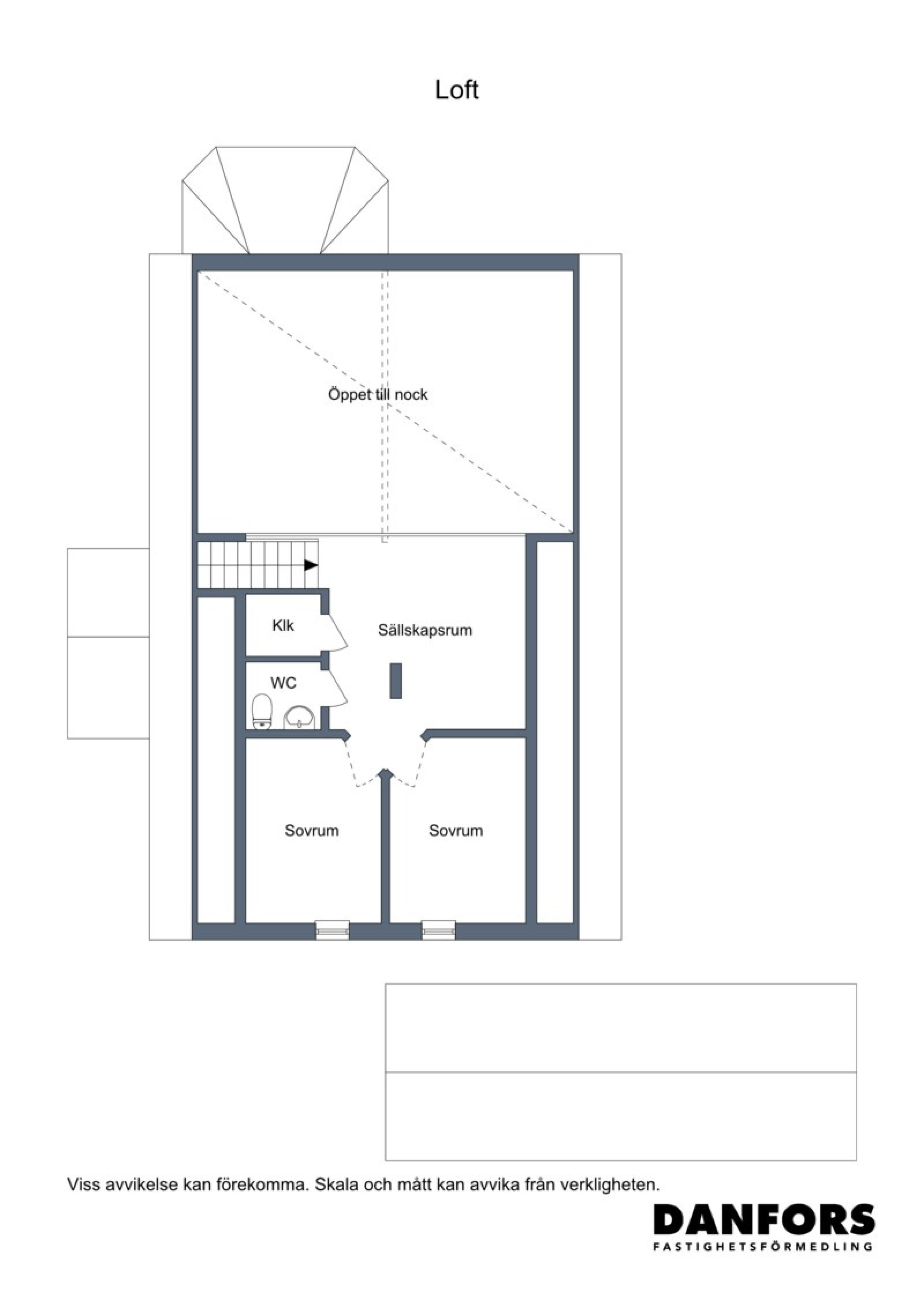
Sällskapsrum Ov
Trevligt sällskapsrum med laminatgolv och glas räcke mot allrummet och dess rymd, vilket ger en fin närvaro till rummet.
Klk
Intill sällskapsrummet finns praktisk klädkammare.
Toalett Ov
Inrett med klinkergolv, tapet, wc, tvättställ.
Sovrum 3 & 4 Ov
Dessa båda sovrummen är inredda med laminatgolv, tapet samt fönsterpartier mot norr.
-
Kortfakta
TypFriliggande villaUpplåtelseformFriköptFast.beteckningSkummeslöv 24:117AdressSaturnusvägen 14Postadress312 72 SkummeslövsstrandOmrådeSkummeslövsstrandKommunLaholmBoarea125 m²AreakällataxeringsinformationAntal rum6 rum, varav 4 sovrumTomtarea1 008 m²Pris3 800 000 krByggnad
Byggnadstyp1½-plansvillaByggnadsår2019 (Påbörjat byggnation 2007.)FasadTräStommeTräFönster3-glasBjälklagTräPlåtarbetePlåtTakBetongpannor/plåtGrundBetongplattaUppvärmningLuft/luft-värmepump, radiatorer, fb med vattenburen golvvärme.Vatten/avloppKommunalt vatten året om. Kommunalt avloppVentilationMekanisk (endast frånluft)Övriga byggnader/utrymmenCarport/förrådTomten
Uppvuxen tomt som angränsar till grönområde mot väster. Här finner vi staket, häckar, fruktträd och en vacker mönstergjuten entrégång med infälld kompass.Uteplats/balkong
Gjuten terrass söder/väster.Bilplats
Mönstrad gjuten uppfart,
Carport/förråd.Driftskostnader
Hushållsel26 977 kr/årVatten/avlopp5 618 kr/årVäg/samfällighetsavgift1 300 kr/årRenhållning2 186 kr/årFörsäkring4 500 kr/årSumma40 581 kr/årBesiktning
Bostaden är besiktigad.Energideklaration
StatusUtförd (2026-02-02)Energiförbrukning100 kWh/m2/år (ATEMP)Primärtenergital196 kWh/m2/årEnergiklassFEl
Elbolag:Södra Hallands KraftElleverantör:Södra Hallands KraftElförbrukning:20034 kWh/årFörsäkring
Gallagher. Bostaden är fullvärdesförsäkrad.Ekonomi
Taxeringsvärde3 322 000 kr (fastställt avseende år 2024)Taxeringsår2024Värdeår2019Byggnadsvärde2 268 000 krMarkvärde1 054 000 krTypkod220, Småhusenhet, bebyggdPantbrev
Totalt 3 st pantbrev om 1 500 000 kr.Inskrivningar / Planbestämmelser
Rättigheter / gemensamhetsanläggningarGemensamhetsanläggning: Laholm skummeslöv ga:8 ändamål: GrönområdenPlanbestämmelserDetaljplan (2001-10-25) -
Är du intresserad av denna bostad?
Fyll i formuläret nedan så återkommer vi till dig med mer information. -
Om området
Fantastiska Skummeslövsstrand lockar allt fler till permanent boende. Likväl badortens kustbebyggelse som ortens nyare bostadsområden utvecklas. Närheten till hav och grönska tillsammans med goda kommunikationsmöjligheter, både norrut och söderut, gör orten attraktiv. Ca en fjärdedel av Skummeslövsstrands hus är bebodda året om och tillsammans med Mellbystrand utgör orten kommunens kustzon. Stranden, mer specifikt en del av Sveriges längsta sandstrand, är långgrunt barnvänlig och där finns även en fantastisk nybyggd brygga.
I Skummeslövsstrand bor du i lugn och ro men med närhet till puls i form av Halmstad och sommar-Båstad. Här befinner du dig även nära Båstad tågstation och E6:an och på orten finns flera motions- och vandringsslingor, naturreservat, camping, föreningsverksamhet samt tempererad utomhusbassäng under sommaren. Här finns även närbutik, vårdcentral, bank, tennisbanor, bageri, restauranger och i grannorterna Mellbystrand och Båstad finns stormarknader, padelbanor, golfbanor m.m.
Varmt välkommen till Skummeslövsstrand!
Förskola: Skummeslövsstrand
Skola F-6: Skottorp samt Mellbystrand
Högstadium: Våxtorp samt LaholmKommunikation
Buss med Hallandstrafiken
Båstad tågstation
Laholm tågstation
E6: av-/påfart Mellbystrand, Skottorp/Skummeslövsstrand, Östra Karup/Båstad
Riksväg 24
Flygplatser: Ängelholm/Helsingborg Airport samt Halmstad City Airport och Copenhagen Airport.
AVSTÅND
Laholm: 1-1,5 mil
Halmstad 3 mil
Båstad: 0,5-1 mil
Ängelholm/Helsingborg Airport: 2-2,5 mil
Helsingborg: ca 5 mil
Copenhagen Airport: 14 mil
