Rumsbeskrivning Kristianstadsvägen 4
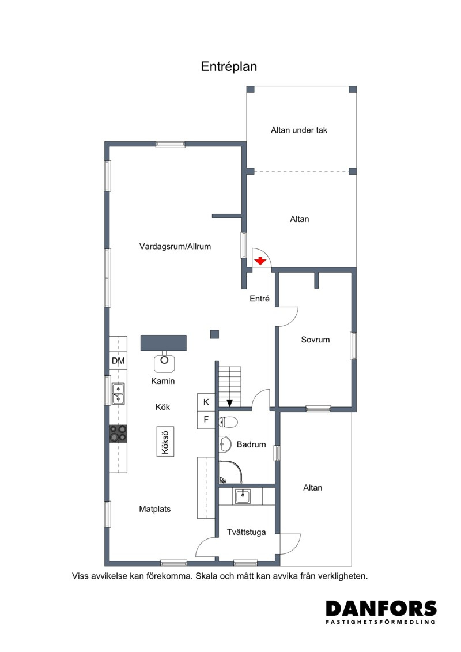
Entré sker till en öppen och välkomnande hall som har direkt kontakt med både kök och allrum. Till vänster om entrén ligger sovrummet, och rakt fram nås bostadens badrum. Allrum och kök är placerade i anslutning till hallen och skiljs delvis åt av en murstock som skapar en naturlig avgränsning mellan rummen. Längst in i köket, vid matplatsen, finns en praktisk tvättstuga med egen groventré.
Via trappan i hallen når man ovanvåningen som rymmer ett rymligt sällskapsrum eller sovrum samt ett mindre gästrum. Här finns även en oinredd vind med goda möjligheter att utveckla ytterligare boyta i framtiden.Hall/entré
Öppen entré mot hall och allrum. Inrett med ljust laminatgolv och ljusa målade vägar. Här finns garderob för klädförvaring samt trappan till våningen placerad.Sovrum 1
Inrett med ljust laminatgolv, ljusa väggar. Ena kortväggen har man möjlighet till förvaring med takskena för draperi, finns även fönster åt väster.
Vardagsrum
Ljust rymligt allrum med fönster åt tre väderstreck. Rummet är avdelat med kortvägg för att kunna ha vardagsrumsdel samt tv-hörna. Även i detta rum ligger ett ljust laminatgolv.
Badrum
Praktisk badrum med plastmatta, våtrumsmatta vägg, wc, tvättställ med underskåp, dusch (vikdörrar) badrumsskåp samt vädringsfönster åt väster.
Kök/matplats
Luftigt kök med murstock som delar av köket mot allrummet. Köket har vitmålade köksluckor, synliga takbjälkar och en grå laminatskiva som bryter av. Köket är utrustat med spis/ugn, fläkt, diskmaskin, kyl med två draglådor (frys) av märket Smeg, kakel ovan köksbänk samt en värmande vedspis. I förlängningen av köket finns matplatsen med fönster åt norr och öster.
Tvättstuga
Utrustat med plastmatta, våtrumsmatta vägg, vask, tvättmaskin, torktumlare, vask, vvb samt groventré ut till angränsande altan åt väster.
Sällskapsrum/sovrum 2 Ov
Härligt rum med öppet upp till nock. Detta rum kan både nyttjas som sällskapsrum alternativt sovrum. I förlängningen av rummet finns ingången till den oinredda vinden. Fönster åt norr.
Sovrum 3 Ov
Litet charmigt gästrum med trägolv och mönstrad tapet. Fönster åt väster.
-
Kortfakta
TypFriliggande villaUpplåtelseformFriköptFast.beteckningVåxtorp 20:1AdressKristianstadsvägen 4Postadress312 75 VåxtorpOmrådeVåxtorpKommunLaholmBoarea/biarea125/10 m²AreakällataxeringsinformationAntal rum4 rum, varav 3 sovrumTomtarea1 263 m²Pris1 300 000 krByggnad
Byggnadstyp1½-plans husByggnadsår1909 (Ombyggt 2019)FasadTräStommeTräFönster2-/3-glasfönsterBjälklagTräPlåtarbetePlåtTakPlåtGrundTorpargrund med f.d matkällare.UppvärmningLuft/luft-värmepump, kamin, radiatorer.Vatten/avloppEnskiltvatten året om. Kommunalt avlopp. (Servitut avtal finns för det enskilda vattnet )VentilationSjälvdragRenovering2015 - Carport
2019 - Målat exteriört, luft/luft-värmepump
2019 - Ombyggt
2022- Glidgjutet murstock
2024 - Installation Krypgrundsavfuktare.Övriga byggnader/utrymmenGårdshus med två förrådsrum samt f.d utedass.
Yttermått om ca 4,5 x 4 m.ÖvrigtFastigheten säljs med friskrivningsklausul.Tomten
Mysig och uppvuxen trädgårdstomt med flertalet prydnadsväxter, häckar, bärbuskar, fruktträd m.m.Uteplats/balkong
Härligt altandäck med anslutande överbyggd del. Insynsskyddat läge.Bilplats
Singlad uppfart för flertalet bilar.
Carport.TV- och internetanslutning
Bredband: Fiber är ej indraget..Driftskostnader
Hushållsel31 841 kr/årVatten/avlopp8 030 kr/årSotning400 kr/årRenhållning2 400 kr/årFörsäkring5 004 kr/årGällande enskilt vatten avgår en kostnad på 1500kr/år, inräknat i den totala VA-avgiften.Summa47 675 kr/år
(fastighetsavgift/skatt på 9 405 kr tillkommer)Energideklaration
StatusUtförd (2023-06-01)Energiförbrukning94 kWh/m2/år (ATEMP)Primärtenergital124 kWh/m2/årEnergiklassDEl
Elbolag:Södra Hallands KraftElleverantör:Södra Hallands KraftElförbrukning:16461 kWh/årFörsäkring
IF. Bostaden är fullvärdesförsäkrad.Ekonomi
Taxeringsvärde1 254 000 kr (fastställt avseende år 2024)Taxeringsår2024Värdeår1969Byggnadsvärde899 000 krMarkvärde355 000 krSkatt/avgift9 405 krTypkod220, Småhusenhet, bebyggdPantbrev
Totalt 6 st pantbrev om 731 000 kr.Inskrivningar / Planbestämmelser
Rättigheter / gemensamhetsanläggningarFörmån: Avtalsservitut Vattenanläggning, D202300182576:1.1
Förmån: Officialservitut Väg, 13-VÅX-764.1PlanbestämmelserByggnadsplan (1959-05-11)Övrigt
Fastigheten säljs med friskrivningsklausul. -
Är du intresserad av denna bostad?
Fyll i formuläret nedan så återkommer vi till dig med mer information. -
Om området
Våxtorp är ett idylliskt samhälle med god service och rika möjligheter till natur- och fritidsaktiviteter. På sommaren finns här rodelbana, Bungy Rocket samt zipline banor på Hallandsås som också har södra Sveriges största skidbackar vilka under säsong drar många besökande från en stor region. Orten har flera villaområden som växte fram under 1970-talet. Välbesökta Våxtorps marknad, vår- och höst, har lång tradition bakåt. Här finns bank, bensinmack med postservice, livsmedelsbutik, möbelaffär, pizzeria, och kiosk med matservering. I samhällets närhet finns ridhus med tävlingsbana, djurklinik, värdshus, kyrka och Laholms golfbana med 27 hål.
Förskola och skola F-9. Idrottshall, motionsspår, tennisbana, bibliotek., servicehus, räddningstjänst.
Avstånd:
Laholm 13 km
Halmstad 35 kmKommunikation
Riksväg 24. Buss med Hallandstrafiken.Övrigt om området
Laholm är Hallands äldsta stad och länets sydligaste kommun. Drygt 25 000 invånare samsas i den lilla västkustskommunen som har ett varierat landskap. Kusten med Sveriges längsta sandstrand, Hallandsåsen med södra Sveriges största skidanläggning, Öppna landskap och jordbruksbygd, Skog och inland med badsjöar och rekreationsområden är olika sidor av samma kommun. Laholm är centralorten med en gammal charmig stadskärna och små trevliga butiker runt Stortorget. Lagan sätter karaktär på staden och på dess väg ut till havet har den, under sommarhalvåret, sällskap av sportfiskare som alla är ute efter den populära laxen. Historian och konsten är påtaglig både i staden och på landsbygden och livet i kommunen präglas av fridfullhet vid såväl kusten som i inlandet. På den bördiga landsbygden finns livskraftigt jordbruk med mjölkkor, potatisåkrar och sädesfält. Här finns gårdsbutiker och ett stort antal hästgårdar. Vi som bor här är bortskämda med småskalighet och korta avstånd, men ändå med närhet till både nöjesmetropoler och storstäder. Några mil till Halmstads eller Ängelholms flygplatser gör att omvärlden finns inom räckhåll. Till Köpenhamn och den internationella flygplatsen Kastrup är det inte mer än ca 16 mil. Både Västkustbanan och E6 går igenom kommunen. De goda kommunikationerna gör att vi inte behöver avstå från storstadsliv och puls bara för att vi njuter av det goda livet på landet.
