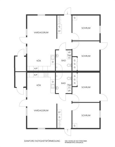
Rumsbeskrivning Krämaregränd lgh 4
Entré till hall med avhängningsmöjligheter, garderob samt städskåp. Rakt fram ligger det helkaklade badrummet med dusch placerat. På ena sidan om hallen ligger kök och vardagsrum med öppen planlösning. Här finns också utgång till en stenlagd uteplats och trädgården. I anslutning till uteplatsen finns även ett förråd som blir en naturlig avgränsning mot grannen.
Från hallen nås de två sovrummen varav det ena har utgång till en stenlagd uteplats på framsidan. Det ena sovrummet har skjutdörrsgarderober medan det andra sovrummet har en vanlig garderob (skåp) monterat.
Genomgående ekparkettgolv i hela lägenheten bortsett från badrum.
Fotografier är från en annan byggnation och viss avvikelse kan förekomma.Kök
Köket är utrustat med induktionshäll, spisfläkt, inbyggnadsugn, diskmaskin, kombinerad kyl/frys.
Badrum
Helkaklat badrum med dusch, duschväggar, WC, handfat, handdukstork och tvättpelare med tvättmaskin och torktumlare. Kakel och klinker, 30x60, i grå nyans. I badrummet finns även värmepumpen installerad.
-
Kortfakta
TypLägenhetUpplåtelseformBRAdressKrämaregränd lgh 4Postadress312 53 HISHULTOmrådeHishultKommunLaholmLgh.nr04Boarea68 m²Areakällaföreningens informationAntal rum3 rumPris1 095 000 krByggnad
Byggnadstyp1-plans parhusByggnadsår2026-2027Fönster3-glas isolerUppvärmningFrånluftsvärmepump, golvvärmeVentilationMekanisk (endast frånluft)Övriga byggnader/utrymmenFörrådEkonomi
Utgångspris1 095 000 krMånadsavgift3 978 kr/mån. Inkl VA och renhållning. Avgiften är beräknad på ett ränteläge på 3,85%Andel i föreningen8.33%Andel av årsavgift8.33%Andel av föreningens lån748 000 krBostaden är pantsattEj angivetDriftskostnader
Hushållsel14 400 kr/årDå bostäderna är under uppbyggnad saknas faktiska driftskostnader. Elkostnaden (inkl uppvärmning) är beräknad. Kostnad för internet/telefon/TV samt hemförsäkring tillkommer.Summa14 400 kr/årUteplats/balkong
Stenlagda uteplatserBilplats
Två parkeringsplatser till vardera lägenhet i anslutning till boendet.Förening
NamnBrf Hishults prästgårdOrganisationsformBostadsrattOrg.nummer000000-0001Föreningen äger marken?Tillåts delat ägande?Tillträde
Q3 2027Dokument
Kostnadskalkyl -
Är du intresserad av denna bostad?
Fyll i formuläret nedan så återkommer vi till dig med mer information. -
Om området
Hishult är ett välskött samhälle mitt i naturen. Här finner barnfamiljer och andra en lugn boendemiljö och här finns konsthallen som visar samtidskonst och lockar tiotusentals besökare varje år. Orten har kyrka, gästgiveri, livsmedelsbutik med postservice, bensinmack och bank. Härifrån är det 27 km till havet och Hishult ligger mitt emellan tätorterna Markaryd och Laholm.
Nybyggd skola, F-6. Högstadium i Våxtorp. Idrottsplats, bokbuss, räddningstjänst.
Avstånd:
Laholm 20 km
Halmstad 43 km
Markaryd 21 kmKommunikation
Buss med Hallandstrafiken.Övrigt om området
Laholm är Hallands äldsta stad och länets sydligaste kommun. Drygt 25 000 invånare samsas i den lilla västkustskommunen som har ett varierat landskap. Kusten med Sveriges längsta sandstrand, Hallandsåsen med södra Sveriges största skidanläggning, Öppna landskap och jordbruksbygd, Skog och inland med badsjöar och rekreationsområden är olika sidor av samma kommun. Laholm är centralorten med en gammal charmig stadskärna och små trevliga butiker runt Stortorget. Lagan sätter karaktär på staden och på dess väg ut till havet har den, under sommarhalvåret, sällskap av sportfiskare som alla är ute efter den populära laxen. Historian och konsten är påtaglig både i staden och på landsbygden och livet i kommunen präglas av fridfullhet vid såväl kusten som i inlandet. På den bördiga landsbygden finns livskraftigt jordbruk med mjölkkor, potatisåkrar och sädesfält. Här finns gårdsbutiker och ett stort antal hästgårdar. Vi som bor här är bortskämda med småskalighet och korta avstånd, men ändå med närhet till både nöjesmetropoler och storstäder. Några mil till Halmstads eller Ängelholms flygplatser gör att omvärlden finns inom räckhåll. Till Köpenhamn och den internationella flygplatsen Kastrup är det inte mer än ca 16 mil. Både Västkustbanan och E6 går igenom kommunen. De goda kommunikationerna gör att vi inte behöver avstå från storstadsliv och puls bara för att vi njuter av det goda livet på landet.
