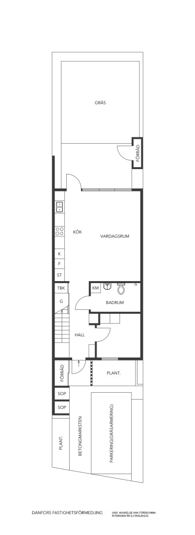
Rumsbeskrivning Iduns väg 10B
Entré till en klinkerbelagd hall med hatthylla och garderob. I hallen finns trappan till ovanvåningen med steg och handledare i ek. På motsatt sida om trappan finns ett sovrum/kontor. I anslutning till hallen finns också ett helkaklat badrum placerat. Vidare in i bostaden når man kök och sällskapsrum med öppen planlösning. Från sällskapsdelen finns utgång till altandäcket och trädgårdstäppan.
På ovanvåningen kommer man upp i ett mindre allrum varifrån samtliga rum nås. Tre sovrum samt det andra helkaklade badrummet.
Genomgående vitmålade väggar och tak samt 1-stavs ekparkettgolv (273 mm bred) i alla rum utom badrum och entré. Alla innerväggar har OSB bakom gips.
Fönsterbrädor i natursten. Rostfria kapitalvaror från Electrolux eller likvärdig.
Uppvärmning via frånluftsvärmepump med golvvärme på entréplan och radiatorer på plan 2.
För mer detaljerad beskrivning om standardutförande se bifogad rumsbeskrivning samt teknisk beskrivning. Individuella tillval kan avvika från nämnda beskrivningar.
Observera att bilderna är illustrationer och kan skilja sig från verkligheten.Kök
Köksinredning från Marbodal. Släta vita luckor och lådfronter. Bänkskiva i laminat.
Inbyggnadsugn, micro, kylskåp, frysskåp, spisfläkt, diskmaskin, induktionshäll. Vitt kakel som stänkskydd. Kyl, frys och diskmaskin är integrerade. Övriga kapitalvaror i rostfritt.
Infällda spotlights i taket.Badrum
Grå klinker på golvet (60x60) och vitt kakel (20x40) på väggarna. Infällda spotlights i taket.
WC, handfat, duschdörrar, spegelskåp med belysning, elektrisk handdukstork samt golvvärme.
I badrummet på entréplan finns även kombinerad tvättmaskin/torktumlare.-
Kortfakta
TypLägenhetUpplåtelseformBRAdressIduns väg 10BPostadress31273 SKUMMESLÖVSSTRANDOmrådeAllarpKommunLaholmLgh.nr01Boarea106.5 m²Areakällaföreningens informationAntal rum5 rumPris2 750 000 kr UtgångsprisByggnad
Byggnadstyp2-plans radhusByggnadsår2022-2024Fönster3-glas isolerUppvärmningFrånluftsvärmepumpVentilationMekanisk frånluftÖvriga byggnader/utrymmenFörråd finns på både framsida och trädgårdssida.ÖvrigtByggnaderna uppförs i trä (trästomme, träfasad samt takbjälklag i trä) på en platta av betong. Papptak. Aluminiumklädda träfönster (3-glas).Ekonomi
Utgångspris2 750 000 krMånadsavgift5 414 kr/mån. exkl driftskostnaderAndel i föreningen10.28%Andel av årsavgift9.89%Andel av föreningens lån1 281 744 kr. Enligt ekonomisk planBostaden är pantsattJaDriftskostnader
Uppvärmning12 000 kr/årVatten/avlopp7 200 kr/årRenhållning1 800 kr/årFörsäkring3 600 kr/årSumma24 600 kr/årUteplats/balkong
Altandäck samt trädgårdstäppa. Belysning samt eluttag finns. Trädgården avgränsas med en avenbokshäck. Dessutom finns en balkong i västerläge samt en takterrass.Bilplats
Biluppställningsplats för en bil finns på framsidan och ingår i månadsavgiften. Ytterligare 9 parkeringsplatser finns att hyra av föreningen enligt principen först till kvarn. Kostnad extra parkeringsplats 200 kr/månad.Förening
NamnBrf Allarps terrasserOrganisationsformBostadsrattOrg.nummer769640-1285Föreningen äger marken?Antal lägenheter10 stTillåts delat ägande?Tillträde
Enligt överenskommelse -
Om området
Med närhet till hav och salta bad växer ett helt nytt samhälle fram — Allarp! Allarps strategiska placering på gränsen mellan två kommuner, med både goda kommunikationsmöjligheter och närhet till natur, ger området många förutsättningar för ett exemplariskt bostadsområde.
I Allarp bor du i lugn och ro med cykelavstånd till Båstad och allt det har att erbjuda, endast några kilometer från Båstads nya tågstation och ett stenkast från grönområde och inte minst Sveriges lägsta sandstrand! Genom av-/påfart Skottorp är du snabbt ute på E6 och endast ca 5 mil söderut når du Helsingborg, ca 14 mil CPH Airport och endast 3 mil norrut Halmstad...Området är mycket expansivt och byggs utifrån den sydsvenska småstadens karaktäristiska gatubild med tät och låg bebyggelse. Redan idag finns nybyggd vårdcentral, bank och förskola på området.
Varmt välkommen till Allarp - den hållbara småstaden!
Förskolor: Allarp och Skummeslövsstrand
Skola F-6: Skottorp samt Mellbystrand
Högstadium: Våxtorp samt LaholmKommunikation
Buss med Hallandstrafiken
Båstad tågstation
Laholm tågstation
E6: av-/påfart Skottorp/Skummeslövsstrand, Östra Karup/Båstad, Mellbystrand
Riksväg 24
Flygplats Ängelholm/Helsingborg Airport samt Halmstad City Airport och Copenhagen Airport.
AVSTÅND
Laholm: 10 km
Halmstad: 25 km
Båstad: 6 km
Ängelholm/Helsingborg Airport: 24 km
Helsingborg: ca 5 mil
Copenhagen Airport: 95 km
