Rumsbeskrivning Iduns väg 6B
Entré till en klinkerbelagd hall med hatthylla och garderob. I hallen finns trappan till ovanvåningen med steg och handledare i ek. På motsatt sida om trappan finns ett sovrum/kontor. I anslutning till hallen finns också ett helkaklat badrum placerat. Vidare in i bostaden når man kök och sällskapsrum med öppen planlösning. Från sällskapsdelen finns stora glaspartier med dörr till altandäcket och trädgårdstäppan.
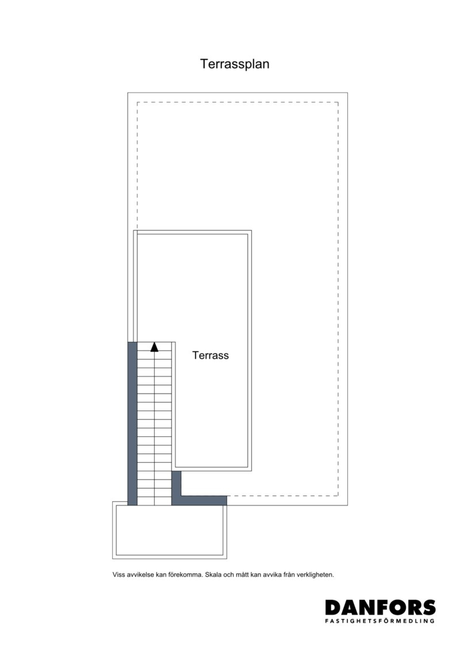
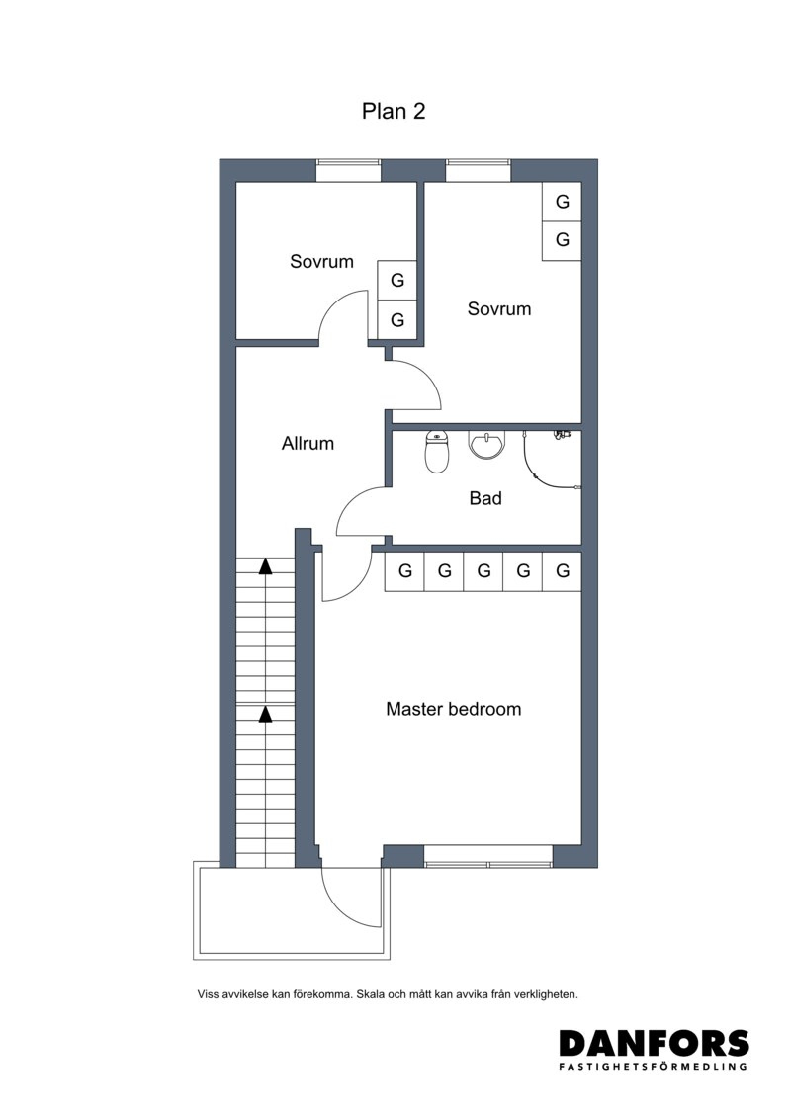
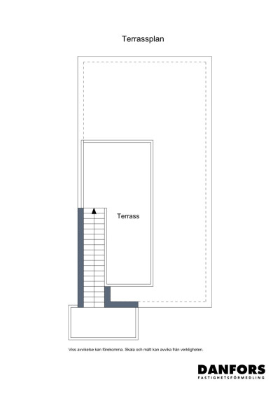
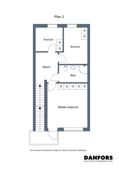
På ovanvåningen kommer man upp i ett mindre allrum varifrån samtliga rum nås. Här finns tre sovrum samt det andra helkaklade badrummet. Ett av sovrummen är idag inrett som en walk in closet och det största av sovrummen används som allrum. Från det större sovrummet finns utgång till balkongen och vidare även takterrassen.
Genomgående vitmålade väggar och tak samt parkettgolv i alla rum utom badrum och entré. Ett sovrum har en heltäckningsmatta. Alla innerväggar har OSB bakom gips.
Fönsterbrädor i natursten.
Uppvärmning via frånluftsvärmepump med golvvärme på entréplan och radiatorer på plan 2.Kök
Köksinredning från Marbodal. Släta luckor och lådfronter.
Inbyggnadsugn, micro, kylskåp, frysskåp, spisfläkt, integrerad diskmaskin samt induktionshäll. Rostfria kapitalvaror från Electrolux.
Infällda spotlights i taket.Badrum
Klinker på golvet (60x60) och vitt kakel (20x40) på väggarna. Infällda spotlights i taket.
WC, dusch, handfat, spegel med belysning, elektrisk handdukstork samt golvvärme.
I badrummet på entréplan finns även en kombinerad tvättmaskin/torktumlare.-
Kortfakta
TypLägenhetUpplåtelseformBRAdressIduns väg 6BPostadress312 73 SKUMMESLÖVSSTRANDOmrådeAllarpKommunLaholmLgh.nr05Boarea106.5 m²Areakällaföreningens informationAntal rum5 rum, varav 3–4 sovrumPris2 695 000 kr utgångsprisByggnad
Byggnadstyp2-plans radhusByggnadsår2024Fönster3-glas isolerUppvärmningFrånluftsvärmepumpVentilationMekanisk frånluft (frånluftsvärmepump)Våningsplan1 av 1. Hiss finns ej.Övriga byggnader/utrymmenFörråd i anslutning till entrén samt ett mindre redskapsförråd på trädgårdssidan.ÖvrigtByggnaderna är uppförda i trä (trästomme, träfasad samt takbjälklag i trä) på en platta av betong. Papptak. Aluminiumklädda träfönster (3-glas)Ekonomi
Utgångspris2 695 000 krMånadsavgift5 414 kr/mån. exkl driftskostnader. Avgiften kommer att höjas till 5.864 kr fr.o.m. jan 2026.Andel i föreningen9.88%Andel av årsavgift9.89%Andel av föreningens lån1 211 360 kr. Enligt årsredovisning 2024Bostaden är pantsattJaDriftskostnader
Uppvärmning16 044 kr/årVatten/avlopp3 600 kr/årRenhållning2 460 kr/årFörsäkring2 676 kr/årI uppvärmningskostnaden ingår kostnad för hushållsel.Summa24 780 kr/årEnergideklaration
StatusUtförd (2024-04-11)Energiförbrukning33 kWh/m2/år (ATEMP)Primärtenergital63 kWh/m2/årEnergiklassBEl
Elbolag:Södra Hallands KraftElleverantör:TibberElförbrukning:7788 kWh/årUteplats/balkong
Altandäck samt trädgårdstäppa. Belysning samt eluttag finns. Trädgården avgränsas med en avenbokshäck. Dessutom finns en balkong i västerläge samt en takterrass.Bilplats
Biluppställningsplats för en bil finns på framsidan och ingår i månadsavgiften. Ytterligare parkeringsplats finns att hyra av föreningen enligt principen först till kvarn. Kostnad extra parkeringsplats 200 kr/månad.Förening
NamnBrf Allarps terrasserOrganisationsformBostadsrattOrg.nummer769640-1285Föreningen äger marken?Antal lägenheter10 stTillåts delat ägande?Tillträde
Enligt överenskommelse -
Är du intresserad av denna bostad?
Fyll i formuläret nedan så återkommer vi till dig med mer information. -
Om området
Med närhet till hav och salta bad växer ett helt nytt samhälle fram — Allarp! Allarps strategiska placering på gränsen mellan två kommuner, med både goda kommunikationsmöjligheter och närhet till natur, ger området många förutsättningar för ett exemplariskt bostadsområde.
I Allarp bor du i lugn och ro med cykelavstånd till Båstad och allt det har att erbjuda, endast några kilometer från Båstads nya tågstation och ett stenkast från grönområde och inte minst Sveriges lägsta sandstrand! Genom av-/påfart Skottorp är du snabbt ute på E6 och endast ca 5 mil söderut når du Helsingborg, ca 14 mil CPH Airport och endast 3 mil norrut Halmstad...Området är mycket expansivt och byggs utifrån den sydsvenska småstadens karaktäristiska gatubild med tät och låg bebyggelse. Redan idag finns nybyggd vårdcentral, bank och förskola på området.
Varmt välkommen till Allarp - den hållbara småstaden!
Förskolor: Allarp och Skummeslövsstrand
Skola F-6: Skottorp samt Mellbystrand
Högstadium: Våxtorp samt LaholmKommunikation
Buss med Hallandstrafiken
Båstad tågstation
Laholm tågstation
E6: av-/påfart Skottorp/Skummeslövsstrand, Östra Karup/Båstad, Mellbystrand
Riksväg 24
Flygplats Ängelholm/Helsingborg Airport samt Halmstad City Airport och Copenhagen Airport.
AVSTÅND
Laholm: 10 km
Halmstad: 25 km
Båstad: 6 km
Ängelholm/Helsingborg Airport: 24 km
Helsingborg: ca 5 mil
Copenhagen Airport: 95 km
