Rumsbeskrivning Sleipners väg 16B
Från entrén har man en fri siktlinje hela vägen genom det luftiga sällskapsrummet och köket och ut till trädgården. Den höga takhöjden på 2,70 meter ger en otrolig rymd till lägenheten och takhöjden kommer igen även på plan 2.
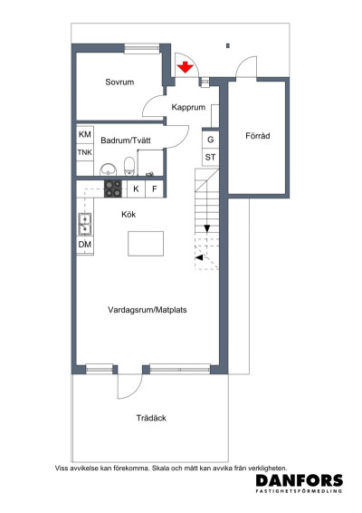
På entréplanet finns ett sovrum/kontor, ett helkaklat badrum med dusch samt kök och sällskapsrum med öppen planlösning. I köket finns en köksö med eluttag och möjlighet till sittplatser och bra förvaringsutrymmen. I sällskapsrummet finns stora fönsterpartier och utgång till ett stort altandäck med pergola. De stora fönsterpartierna ger bra med ljusinsläpp och ökar känslan av rymd ytterligare.
I anslutning till hallen finns trappan till ovanvåningen. Här finns tre rymliga sovrum samt det andra badrummet med dusch. I det stora sovrummet ligger en mjuk heltäckningsmatta och här finns gott om garderober.
Genomgående parkettgolv i hela bostaden. Vitpigmenterad ek, trestavsparkett.
Uppvärmning via frånluftsvärmepump, golvvärme på bottenvåningen och radiatorer på ovanvåningen. Elektrisk golvvärme finns i badrummet på plan 2.
Bostaden är fiberansluten och nätverksuttag finns i sovrum, kök och sällskapsrum.Kök
L-format kök och köksö med eluttag. Inredning från Ballingslöv, luckor Solid (varmgrå). Rostfria kapitalvaror från Electrolux. Bänkskiva i laminat.
Köket är utrustat med kylskåp, frysskåp, integrerad diskmaskin, ugn, induktionshäll och spisfläkt.Badrum
Badrum BV: WC, tvättställ, dusch med duschväggar i glas, kombinerad tvättmaskin/torktumlare (Electrolux), handdukstork samt teknikutrymme med värmepump m.m.
Helkaklat med 30 x 60 cm plattor. Granitkeramik på golvet och vitt blankt kakel på väggarna.
Badrum OV: WC, tvättställ, handdukstork samt dusch. Elektrisk golvvärme.
Våtrumsmatta på golvet samt kakel 30 x 60 cm på väggen.-
Kortfakta
TypLägenhetUpplåtelseformBRAdressSleipners väg 16BPostadress31273 SKUMMESLÖVSSTRANDOmrådeAllarpKommunLaholmLgh.nr01Boarea101.4 m²Areakällaföreningens informationAntal rum5 rum, varav 4 sovrumPris2 895 000 kr UtgångsprisByggnad
Byggnadstyp2-plans radhusByggnadsår2022Fönster3-glas aluminiumklädda träfönsterUppvärmningFrånluftsvärmepumpVentilationMekanisk frånluft (frånluftsvärmepump)Våningsplan1 av 1. Hiss finns ej.Övriga byggnader/utrymmenStort förråd med ingång från framsidan.ÖvrigtByggnaderna är uppförda på betongplatta med en stomme av trä och bjälklag av trä. På taket ligger papp och fasaden består av liggande träpanel. Delar av fasaden är klädda med rombformade plåtar.Ekonomi
Utgångspris2 895 000 krMånadsavgift5 600 kr/mån. Exkl driftskostnaderAndel i föreningen4.3483%Andel av årsavgift4.16667%Andel av föreningens lån1 221 501 kr. Enligt årsredovisning 2024Bostaden är pantsattJaDriftskostnader
Uppvärmning19 200 kr/årVatten/avlopp3 600 kr/årRenhållning2 460 kr/årFörsäkring1 812 kr/årI uppvärmningskostnaden ingår även kostnad för hushållsel.Summa27 072 kr/årEnergideklaration
StatusUtförd (2024-01-26)Energiförbrukning29 kWh/m2/år (ATEMP)Primärtenergital55 kWh/m2/årEnergiklassBEl
Elbolag:Södra Hallands KraftElleverantör:Södra Hallands KraftElförbrukning:8016 kWh/årUteplats/balkong
Stort altandäck i sydvästläge med härlig utsikt.Bilplats
Två parkeringsplatser på lägenhetens framsida.Förening
NamnBrf Allarps strandOrganisationsformBostadsrattOrg.nummer769638-7963Föreningen äger marken?Äkta/oäkta förening?ÄktaAntal lägenheter24 stÖverlåtelseavgift1470 kr (betalas av Kopare)Pantsättningsavgift588 krTillåts delat ägande?Tillträde
Enligt överenskommelse -
Är du intresserad av denna bostad?
Fyll i formuläret nedan så återkommer vi till dig med mer information. -
Om området
Med närhet till hav och salta bad växer ett helt nytt samhälle fram — Allarp! Allarps strategiska placering på gränsen mellan två kommuner, med både goda kommunikationsmöjligheter och närhet till natur, ger området många förutsättningar för ett exemplariskt bostadsområde.
I Allarp bor du i lugn och ro med cykelavstånd till Båstad och allt det har att erbjuda, endast några kilometer från Båstads nya tågstation och ett stenkast från grönområde och inte minst Sveriges lägsta sandstrand! Genom av-/påfart Skottorp är du snabbt ute på E6 och endast ca 5 mil söderut når du Helsingborg, ca 14 mil CPH Airport och endast 3 mil norrut Halmstad...Området är mycket expansivt och byggs utifrån den sydsvenska småstadens karaktäristiska gatubild med tät och låg bebyggelse. Redan idag finns nybyggd vårdcentral, bank och förskola på området.
Varmt välkommen till Allarp - den hållbara småstaden!
Förskolor: Allarp och Skummeslövsstrand
Skola F-6: Skottorp samt Mellbystrand
Högstadium: Våxtorp samt LaholmKommunikation
Buss med Hallandstrafiken
Båstad tågstation
Laholm tågstation
E6: av-/påfart Skottorp/Skummeslövsstrand, Östra Karup/Båstad, Mellbystrand
Riksväg 24
Flygplats Ängelholm/Helsingborg Airport samt Halmstad City Airport och Copenhagen Airport.
AVSTÅND
Laholm: 10 km
Halmstad: 25 km
Båstad: 6 km
Ängelholm/Helsingborg Airport: 24 km
Helsingborg: ca 5 mil
Copenhagen Airport: 95 km
